12056 Stallings Commerce Drive

12056 Stallings Commerce Drive

Matthews, NC 28105
$1,250,000

  • Lot Size: 0.5 Acres
Description

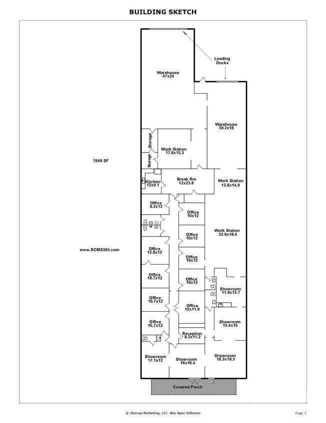
Available for sale or lease: 7,625 SF flex property in Stallings offers a unique opportunity for owner-users or tenants looking to expand in a high-growth area. Prime location off US-74 offers easy access to 74 and I-485 to Charlotte, Monroe, and surrounding markets. Zoned MU-2 in Stallings, the property supports a wide range of uses. Currently built out with +/- 3,000 SF of warehouse and the remainder private office and showroom area. The office area is made up of partition walls, allowing for easy reconfiguration to suit your needs. One dock door and one drive-in door.

Property Summary
Property Type: Commercial Sale Property Subtype : Warehouse/Office
Year Built : 1984 Construction Type : Site Built
Lot Size : 0.5 Acres
More Information
  • Parking : Assigned, Parking Lot
  • Water Source : City
  • Road : Publicly Maintained Road
  • Listing Terms : Cash, Conventional, Exchange, Lease
  • Possible Use : Commercial

Based on information submitted to the MLS GRID as of 11-16-2025 20:05:05 UTC All data is obtained from various sources and may not have been verified by broker or MLS GRID. Supplied Open House Information is subject to change without notice. All information should be independently reviewed and verified for accuracy. Properties may or may not be listed by the office/agent presenting the information.

Listed By
Moser Group, Inc., The
Zach Britt
615-971-1553
Contact Us