1395 Roundstone Road

1395 Roundstone Road

Sherrills Ford, NC 28673
$933,000

  • Bedrooms: 2
  • Bathrooms: 2
  • Lot Size: 1.15 Acres
Description

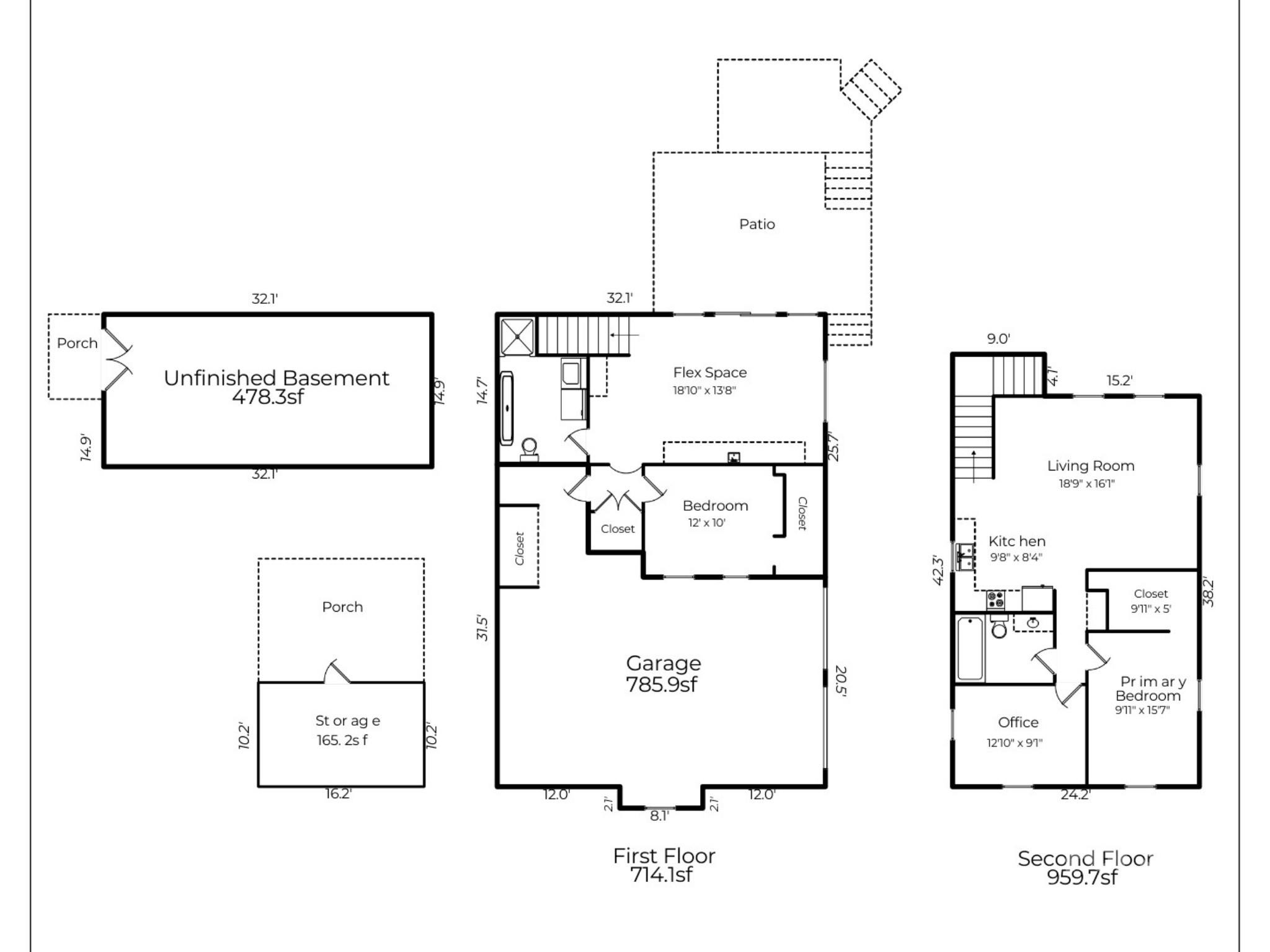
Rare opportunity on Lake Norman! Move-in ready home on a stunning, gently sloped waterfront lot with endless potential-live comfortably now while (if desired) planning your dream addition or 2nd residence. Home is thoughtfully placed to the side and soil tests suggest building options for 3–4 BR systems. Enjoy deep water and breathtaking sunsets just 7 houses from the main channel, with a covered dock and extensive retaining walls. Updated interior features a spacious living area, stainless app's in kitchen, primary w/ walk-in, and office/bonus with loft via a custom floating cedar staircase. Fresh paint, new vinyl plank flooring. Main level flex space w/ wet bar, tile, knotty pine ceiling, 12' sliding doors to 2-level deck, a themed bedroom, and full bath/laundry-perfect after lake days! Oversized garage (786 sf, expandable to 1,000+ sf), 10’x10’ & 16’ wide doors. Unfinished basement for storage; wired & insulated workshop; fire pit; extra parking. Incredible location and opportunity!

Property Summary
Property Type: Residential Property Subtype : Single Family Residence
Year Built : 2002 Construction Type : Site Built
Lot Size : 1.15 Acres Living Area : 1,674 sqft
Property Features
  • Waterfront
  • Garage
  • Insulated Window(s)
  • Deck
Appliances
  • Bar Fridge
  • Dishwasher
  • Electric Range
  • Electric Water Heater
  • Filtration System
  • Microwave
  • Refrigerator with Ice Maker
  • Self Cleaning Oven
More Information
  • Construction : Fiber Cement
  • Roof : Shingle
  • Parking : Driveway, Attached Garage, Garage Shop
  • Heating : Central, Electric, Heat Pump
  • Cooling : Central Air, Electric
  • Water Source : Well
  • Road : Publicly Maintained Road
  • Listing Terms : Cash, Conventional

Based on information submitted to the MLS GRID as of 11-16-2025 05:00:06 UTC All data is obtained from various sources and may not have been verified by broker or MLS GRID. Supplied Open House Information is subject to change without notice. All information should be independently reviewed and verified for accuracy. Properties may or may not be listed by the office/agent presenting the information.

Listed By
HoneyBee Real Estate
Kendra Eades
704-491-7944
Contact Us