1495 North Main Street

1495 North Main Street

Hendersonville, NC 28739
$2,850,000

  • Lot Size: 3.55 Acres
Description

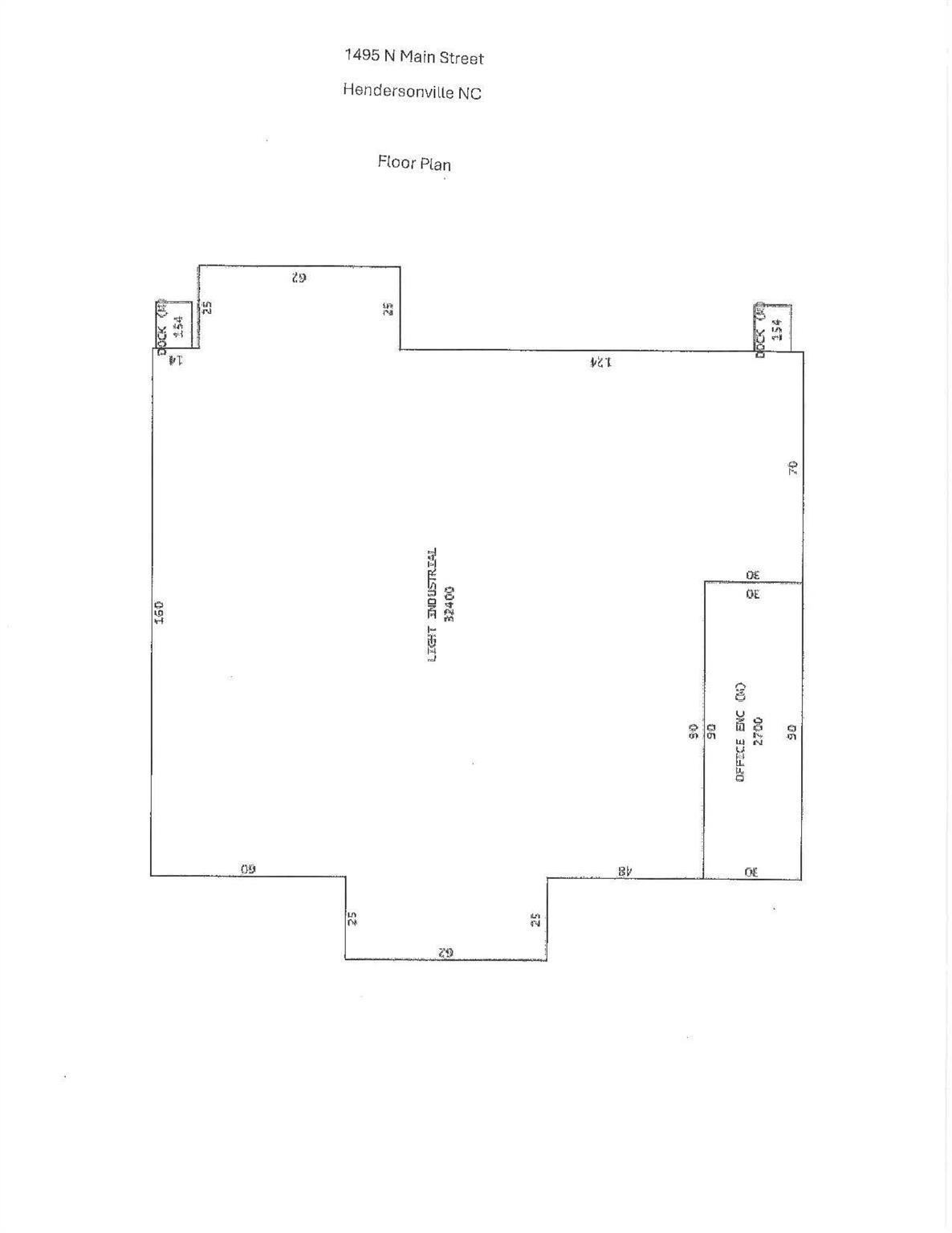
Prime location on a hill overlooking Patton Park and the Ocklawaha Trail in the rapidly developing section of Henderson County, just outside of the Hendersonville City Limits, but still near downtown Hendersonville. Two parcels included, Tax Pin# 9569644321 & 956944182 for a total of approximately 3.55/ac. The property is mostly level with lots of area for parking around the building and an expandable parking area behind the building. The main building had a new roof installed in 2021. The main building is 32,400/sf with 2,700/sf of office area for a total of 35,100/sf. Building has 2 truck docks and a roll-up door in the main building with 12' ceilings. Many possible uses in this high growth area. Call the listing agent for all showings.

Property Summary
Property Type: Commercial Sale Property Subtype : Industrial
Year Built : 1953 Construction Type : Site Built
Lot Size : 3.55 Acres
More Information
  • Road : Publicly Maintained Road

Based on information submitted to the MLS GRID as of 11-16-2025 17:34:05 UTC All data is obtained from various sources and may not have been verified by broker or MLS GRID. Supplied Open House Information is subject to change without notice. All information should be independently reviewed and verified for accuracy. Properties may or may not be listed by the office/agent presenting the information.

Listed By
Pulliam Properties, Inc
James Wilson
828-768-7098
Contact Us