7408 Hwy 218 Highway

7408 Hwy 218 Highway

Marshville, NC 28103
$409,999

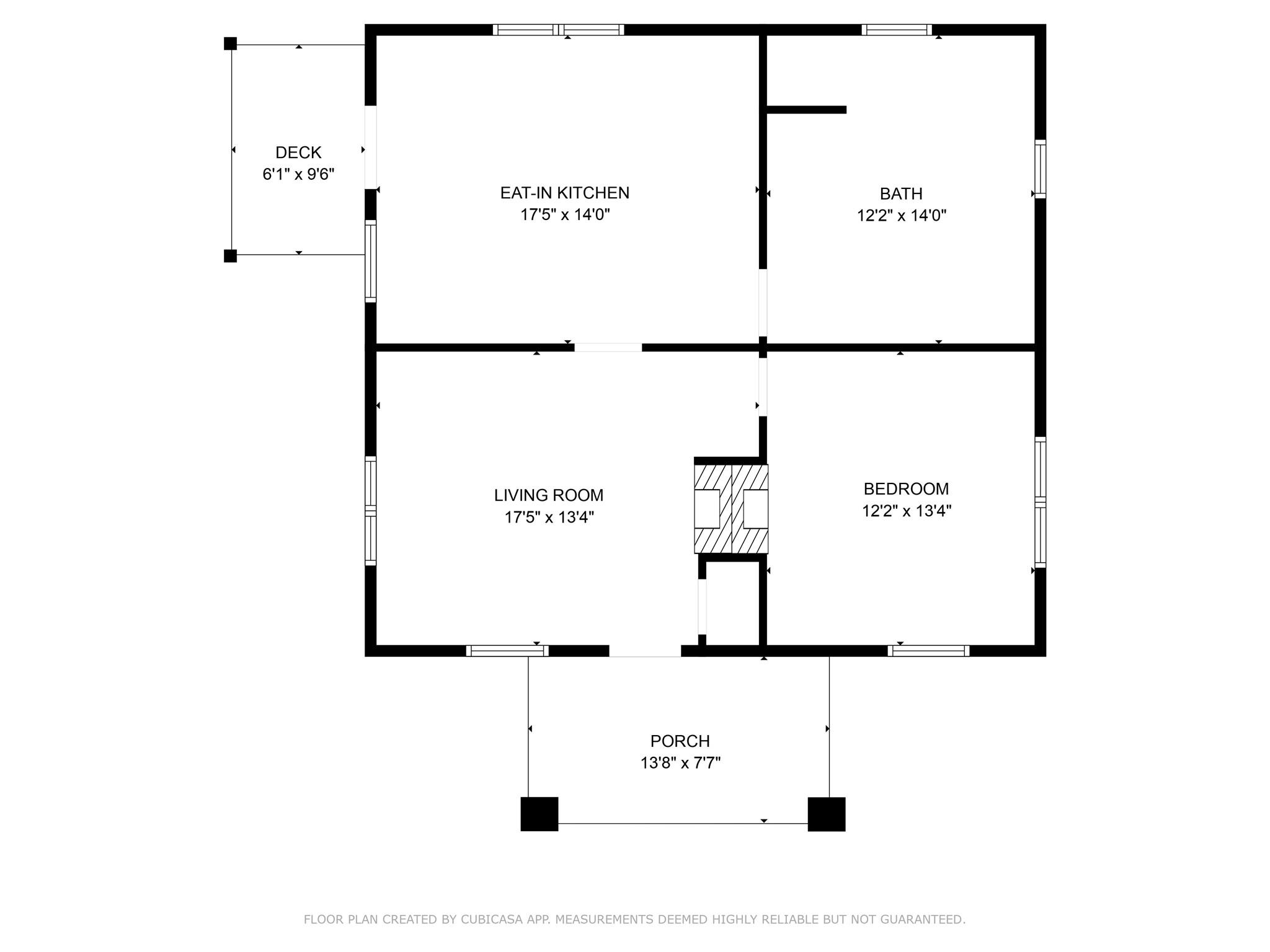
  • Bedrooms: 1
  • Bathrooms: 1
  • Lot Size: 11.45 Acres
Description

Newly Renovated Home on 11+ Acres. This beautifully updated home sits on 11.45 acres and has the perfect mix of fresh modern touches and peaceful country charm. Inside, you’ll find brand new LVP flooring, quartz countertops, new cabinets, and a deep farmhouse sink. The bathroom has a custom tile shower, —new roof, new HVAC, new windows, new siding, updated light fixtures, and added outlets throughout. It’s move-in ready with all the hard work already done. Outside, enjoy the space and privacy with blueberry bushes, pecan trees, and room to roam, garden, or just relax. Whether you're dreaming of a hobby farm, a quiet getaway, or just more land to enjoy, this one checks all the boxes. Come see it for yourself—you’ll fall in love with the setting.

Property Summary
Property Type: Residential Property Subtype : Single Family Residence
Year Built : 1901 Construction Type : Site Built
Lot Size : 11.45 Acres Living Area : 840 sqft
Appliances
  • Other
More Information
  • Construction : Vinyl
  • Parking : Driveway
  • Heating : Electric
  • Cooling : Central Air
  • Water Source : County Water, Tap Fee Required, Well
  • Road : Publicly Maintained Road

Based on information submitted to the MLS GRID as of 10-01-2025 23:09:05 UTC All data is obtained from various sources and may not have been verified by broker or MLS GRID. Supplied Open House Information is subject to change without notice. All information should be independently reviewed and verified for accuracy. Properties may or may not be listed by the office/agent presenting the information.

Listed By
Ridge Realty
Cam Sustar
980-406-5972
Contact Us