2564 Captains Watch Road

2564 Captains Watch Road

Kannapolis, NC 28083
$331,000

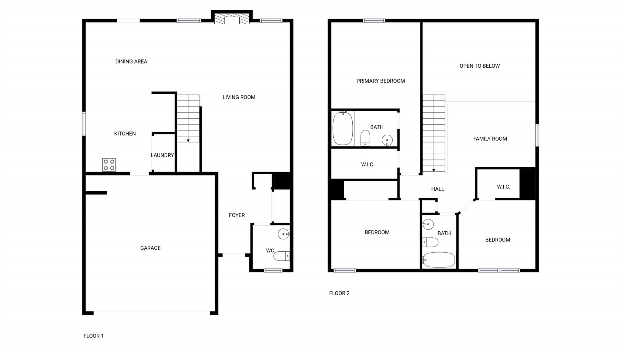
  • Bedrooms: 3
  • Bathrooms: 3
  • Lot Size: 0.17 Acres
Description

Welcome to your dream home! This property boasts a neutral color paint scheme that creates a calming ambiance throughout. The living room is highlighted by a cozy fireplace, perfect for those chilly evenings. The kitchen is a chef's delight with an accent backsplash adding a touch of elegance. The kitchen features all-new stainless steel appliances, perfect for any culinary adventure. The primary bedroom features a spacious walk-in closet, providing ample storage space. Outside, you'll find a deck ideal for entertaining and a fenced-in backyard for privacy. This home is a must-see, offering a blend of comfort and style. Don't miss this opportunity to make it yours! Included 100-Day Home Warranty with buyer activation

Property Summary
Property Type: Residential Property Subtype : Single Family Residence
Year Built : 2000 Construction Type : Site Built
Lot Size : 0.17 Acres Living Area : 1,721 sqft
Appliances
  • Dishwasher
  • Electric Range
  • Microwave
More Information
  • Construction : Vinyl
  • Roof : Composition
  • Parking : Driveway, Attached Garage, Parking Space(s)
  • Heating : Central, Natural Gas
  • Cooling : Central Air, Gas
  • Water Source : Public
  • Road : Publicly Maintained Road
  • Listing Terms : Cash, Conventional, VA Loan

Based on information submitted to the MLS GRID as of 12-04-2025 13:25:05 UTC All data is obtained from various sources and may not have been verified by broker or MLS GRID. Supplied Open House Information is subject to change without notice. All information should be independently reviewed and verified for accuracy. Properties may or may not be listed by the office/agent presenting the information.

Listed By
Opendoor Brokerage LLC
Amy Horne
404-390-0229
Contact Us