324 Bridgewater Lane

324 Bridgewater Lane

Mooresville, NC 28117
$1,675,000

  • Bedrooms: 3
  • Bathrooms: 4
  • Lot Size: 0.51 Acres
Description

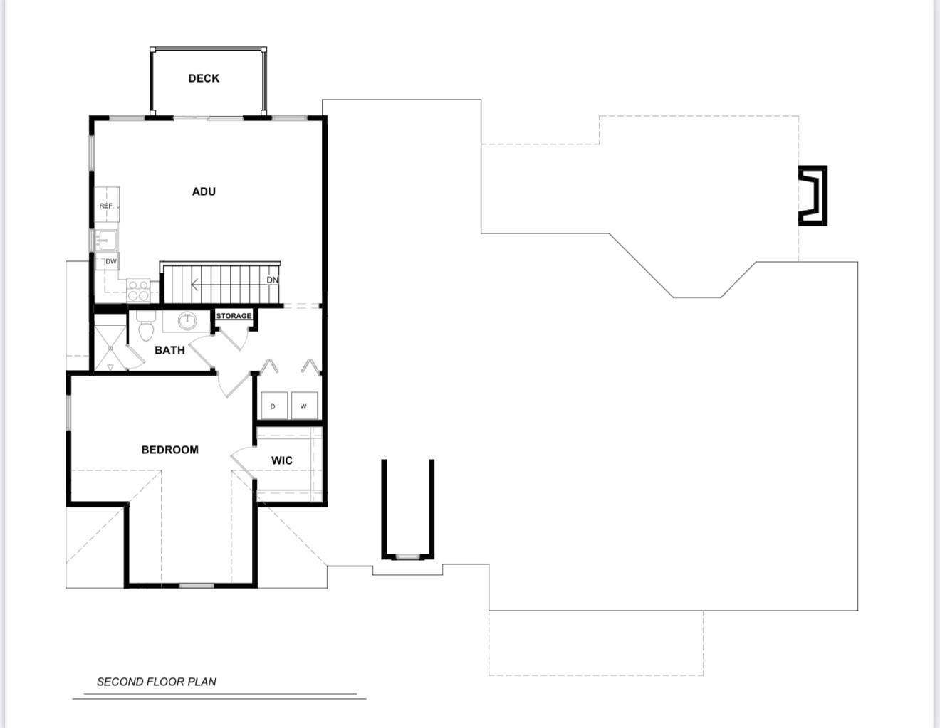
Luxurious lakefront living on Lake Norman! This proposed 2,294 SF ranch features two main-level primary suites plus a private secondary living quarters above the garage—perfect for guests or multi-generational living. Enjoy an open layout, gourmet kitchen with quartz countertops, custom cabinetry, and luxury finishes throughout. Outdoor living shines with a spacious lanai, terrace, and second fireplace overlooking the lake. A private dock offers direct water access for boating and relaxation. Three-car garage provides ample space for lake gear. Located near I-77, shopping, dining, and medical. Buyers may customize the current plan or bring their own builder and design. Don’t miss this rare opportunity to create your ideal Lake Norman retreat!

Property Summary
Property Type: Residential Property Subtype : Single Family Residence
Year Built : 2025 Construction Type : Site Built
Lot Size : 0.51 Acres Living Area : 1,512 sqft
Property Features
  • Cleared
  • Level
  • Waterfront
  • Garage
  • Entrance Foyer
  • Open Floorplan
  • Pantry
  • Split Bedroom
  • Walk-In Closet(s)
  • Walk-In Pantry
  • Fireplace
  • Covered Patio
  • Front Porch
  • Rear Porch
  • Terrace
Views
  • Water
Appliances
  • Dishwasher
  • Exhaust Hood
  • Gas Range
  • Gas Water Heater
  • Tankless Water Heater
More Information
  • Construction : Fiber Cement
  • Roof : Architectural Shingle
  • Parking : Driveway, Attached Garage, Garage Faces Side
  • Heating : Heat Pump
  • Cooling : Central Air
  • Water Source : Well
  • Road : Publicly Maintained Road
  • Listing Terms : Cash, Construction Perm Loan

Based on information submitted to the MLS GRID as of 11-17-2025 03:20:05 UTC All data is obtained from various sources and may not have been verified by broker or MLS GRID. Supplied Open House Information is subject to change without notice. All information should be independently reviewed and verified for accuracy. Properties may or may not be listed by the office/agent presenting the information.

Listed By
Keller Williams Unified
Elizabeth Davis
704-995-9838
Contact Us