75 Laurelwood Drive

75 Laurelwood Drive

Marion, NC 28752
$239,000

  • Bedrooms: 2
  • Bathrooms: 2
Description

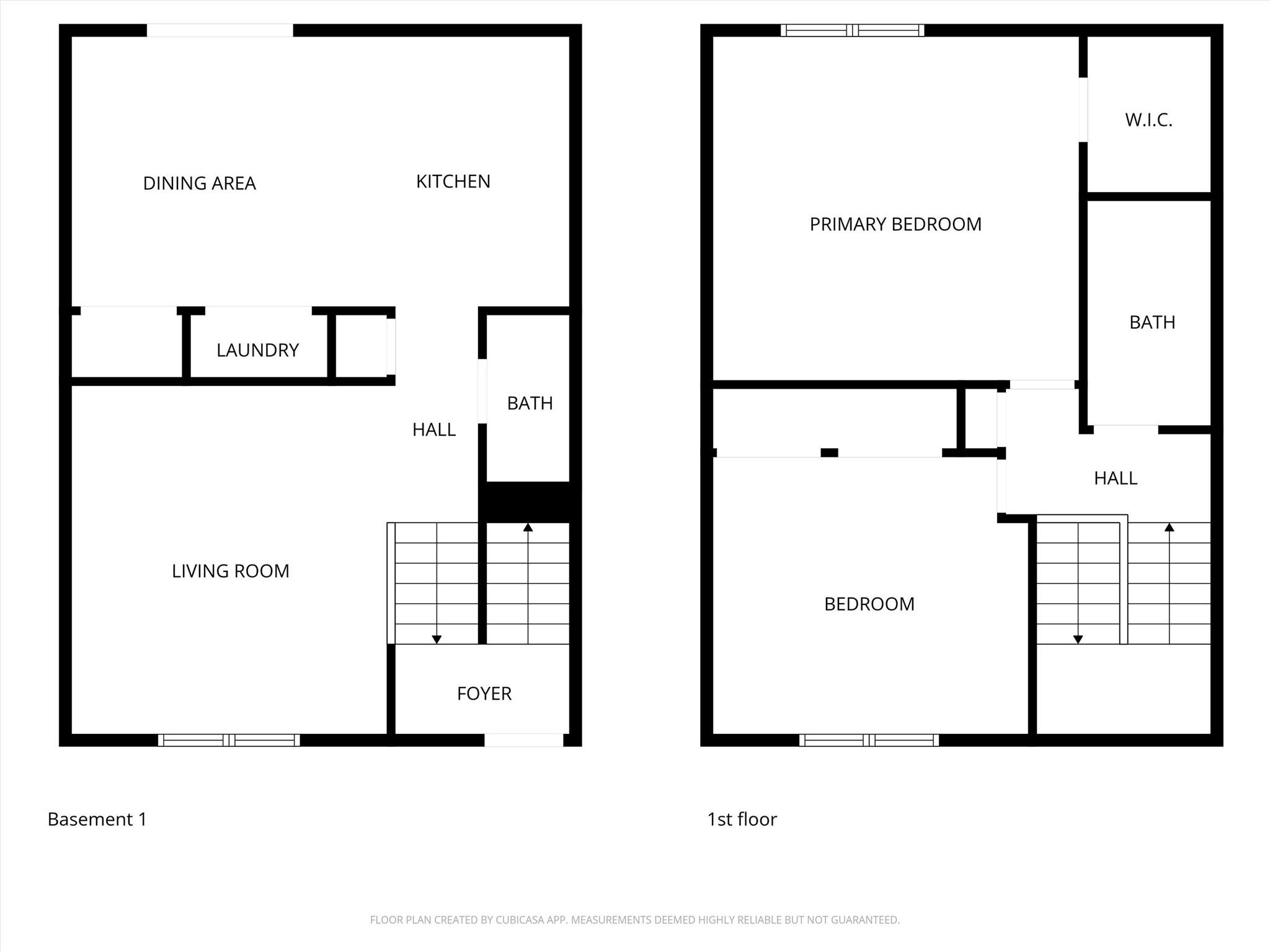
Welcome to 75 Laurelwood Dr., Unit 91 in Marion, NC — an inviting and affordable townhome in one of Marion’s most established and well-kept communities. Conveniently located just minutes from Downtown Marion, this 2-bedroom, 1.5-bath unit offers low-maintenance living with tasteful updates throughout. Step inside to easy-care vinyl plank flooring with a warm hardwood look, creating a cozy and modern feel. The floor plan includes a comfortable living area, an efficient kitchen, and a dining space that opens to your private, covered back patio—perfect for morning coffee or unwinding after a long day. You’ll also enjoy a covered front porch for added charm and outdoor enjoyment. Upstairs features two spacious bedrooms, including a large primary suite with a walk-in closet, plus a full bath conveniently located between both rooms. Laurelwood’s well-established community offers a swimming pool, well-maintained grounds, and maintenance-free living, making it ideal for full-time residents, first-time buyers, or those seeking a low-maintenance lifestyle. A wonderful opportunity to own an affordable, updated townhome close to everything Marion has to offer...and the home comes furnished!

Property Summary
Property Type: Residential Property Subtype : Townhouse
Year Built : 1987 Construction Type : Site Built
Lot Size : Not available Living Area : 1,240 sqft
Property Features
  • Entrance Foyer
  • Walk-In Closet(s)
Appliances
  • Dishwasher
  • Electric Range
  • Electric Water Heater
  • Microwave
  • Refrigerator
  • Washer/Dryer
More Information
  • Construction : Brick Full
  • Roof : Architectural Shingle
  • Parking : Driveway
  • Heating : Heat Pump
  • Cooling : Heat Pump
  • Water Source : Community Well
  • Road : Private Maintained Road

Based on information submitted to the MLS GRID as of 11-19-2025 22:35:05 UTC All data is obtained from various sources and may not have been verified by broker or MLS GRID. Supplied Open House Information is subject to change without notice. All information should be independently reviewed and verified for accuracy. Properties may or may not be listed by the office/agent presenting the information.

Listed By
ERA Live Moore
Tami Newman
828-925-1130
Contact Us