3112 Ella Katherine Way

3112 Ella Katherine Way

Charlotte, NC 28210
$2,096,947

  • Bedrooms: 4
  • Bathrooms: 5
  • Lot Size: 0.165 Acres
Description

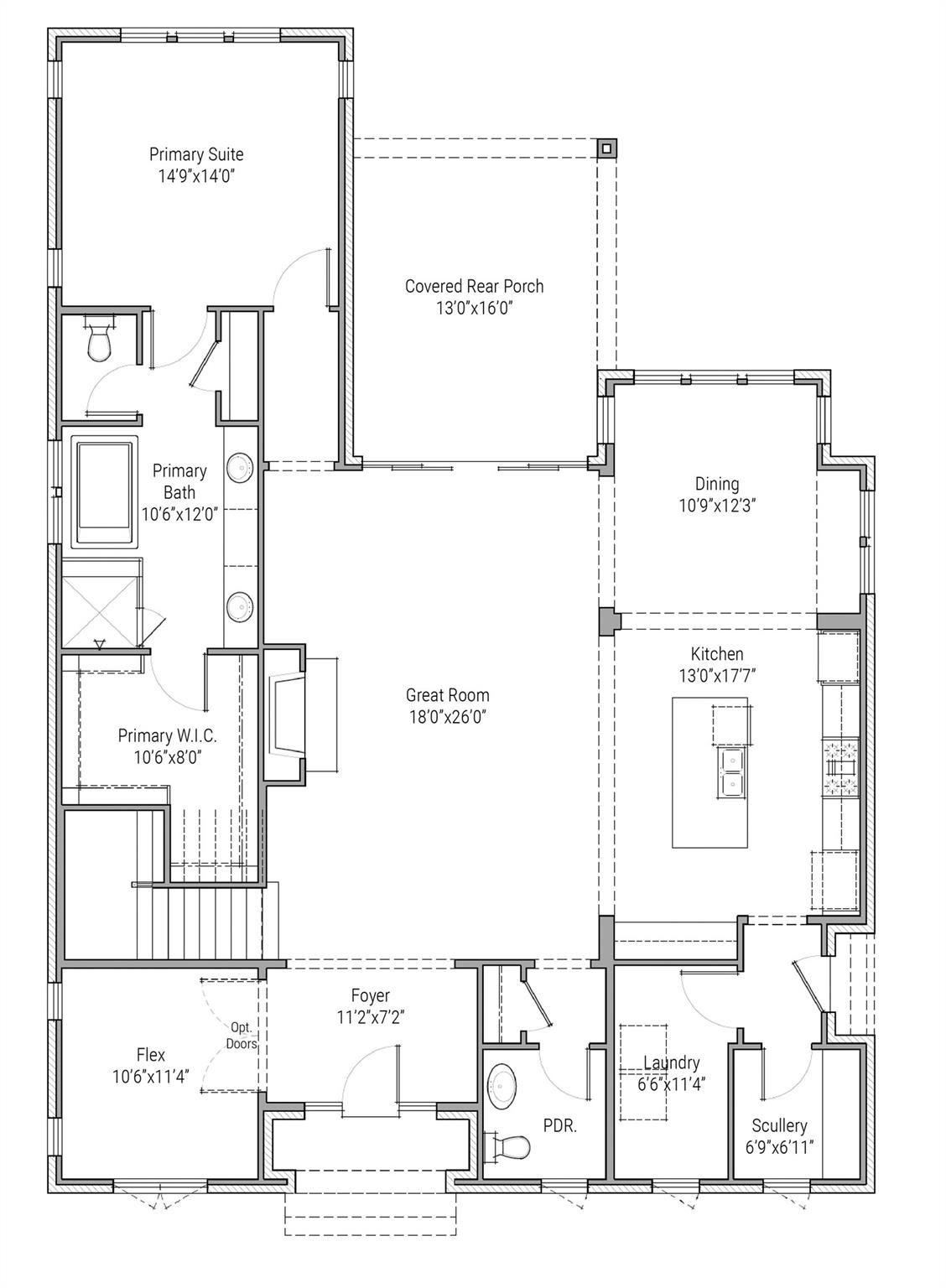
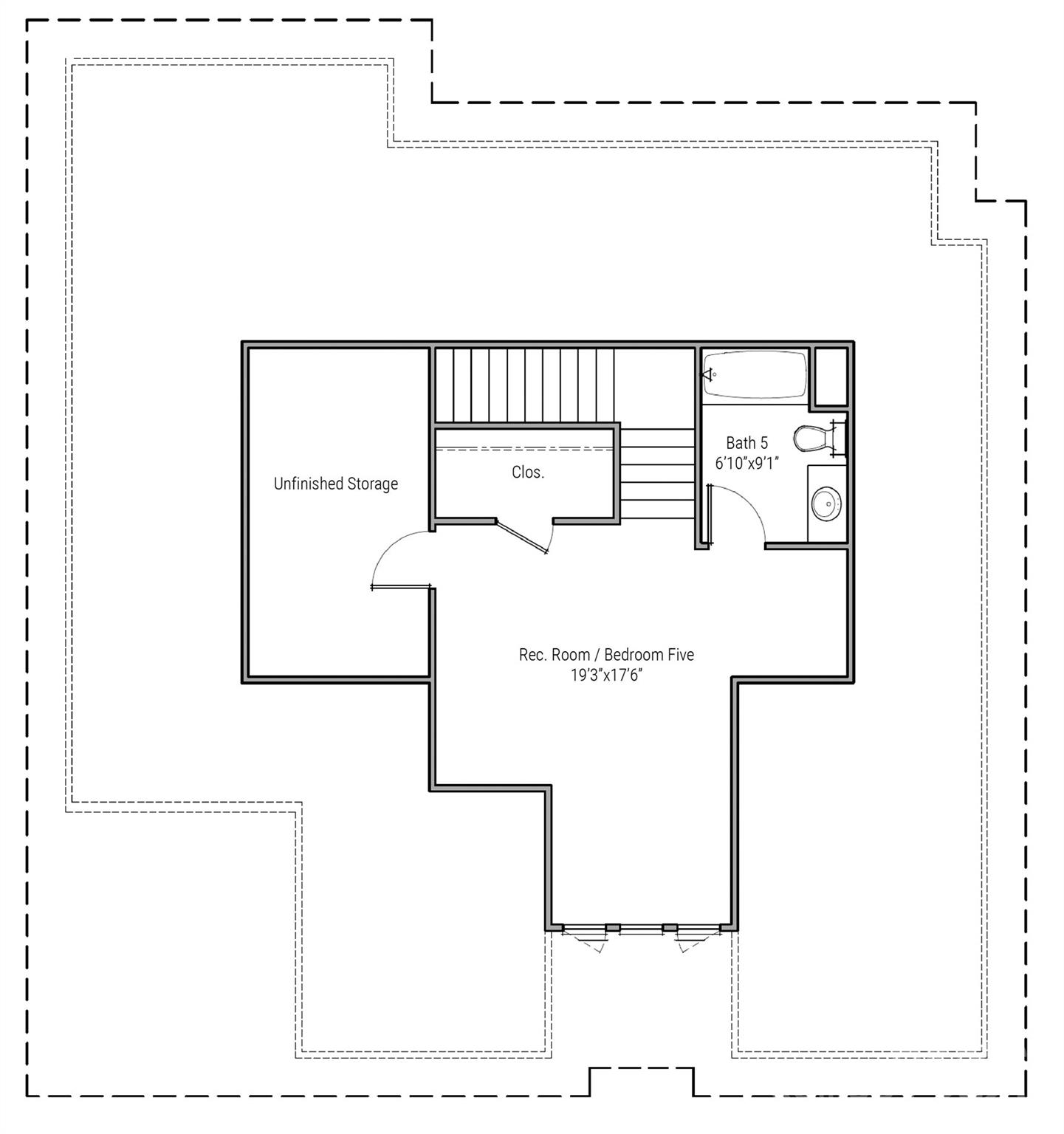
Located in the gated community of Heydon Hall, this home is one of only 14 available in the community’s final phase. Designed for flexibility, the plan includes a sealed crawl space and an optional finished third floor that adds a rec room or 5th bedroom with full bath, bringing an additional 554 sq ft. to the home. The primary suite is on the main level along with a flex room, large great room, separate dining area, scullery, and a covered rear porch. The second floor offers three spacious bedrooms with en suite baths, plus a bonus room and office—with the option to add a wet bar in the bonus. A detached garage completes this well-designed residence. As with all lots, pools can be added.

Property Summary
Property Type: Residential Property Subtype : Single Family Residence
Year Built : 2026 Construction Type : Site Built
Lot Size : 0.165 Acres Living Area : 3,907 sqft
Property Features
  • Infill Lot
  • Garage
  • Entrance Foyer
  • Kitchen Island
  • Open Floorplan
  • Storage
  • Walk-In Closet(s)
  • Insulated Window(s)
  • Fireplace
  • Covered Patio
  • Front Porch
  • Patio
  • Rear Porch
Appliances
  • Dishwasher
  • Disposal
  • Electric Oven
  • Exhaust Fan
  • Exhaust Hood
  • Gas Cooktop
  • Gas Water Heater
  • Microwave
  • Plumbed For Ice Maker
  • Self Cleaning Oven
  • Wall Oven
More Information
  • Construction : Brick Partial, Hardboard Siding, Wood
  • Roof : Architectural Shingle
  • Parking : Driveway, Detached Garage, Garage Door Opener, Keypad Entry
  • Heating : Forced Air, Heat Pump, Natural Gas, Zoned
  • Cooling : Central Air, Zoned
  • Water Source : City
  • Road : Private Maintained Road
  • Listing Terms : Cash, Construction Perm Loan, Conventional

Based on information submitted to the MLS GRID as of 11-19-2025 00:55:05 UTC All data is obtained from various sources and may not have been verified by broker or MLS GRID. Supplied Open House Information is subject to change without notice. All information should be independently reviewed and verified for accuracy. Properties may or may not be listed by the office/agent presenting the information.

Listed By
Simonini Realty Inc
Weezy Parsons
704-877-8395
Contact Us