2126 Haven Circle

2126 Haven Circle

Lenoir, NC 28645
$250,000

  • Lot Size: 1.4 Acres
Description

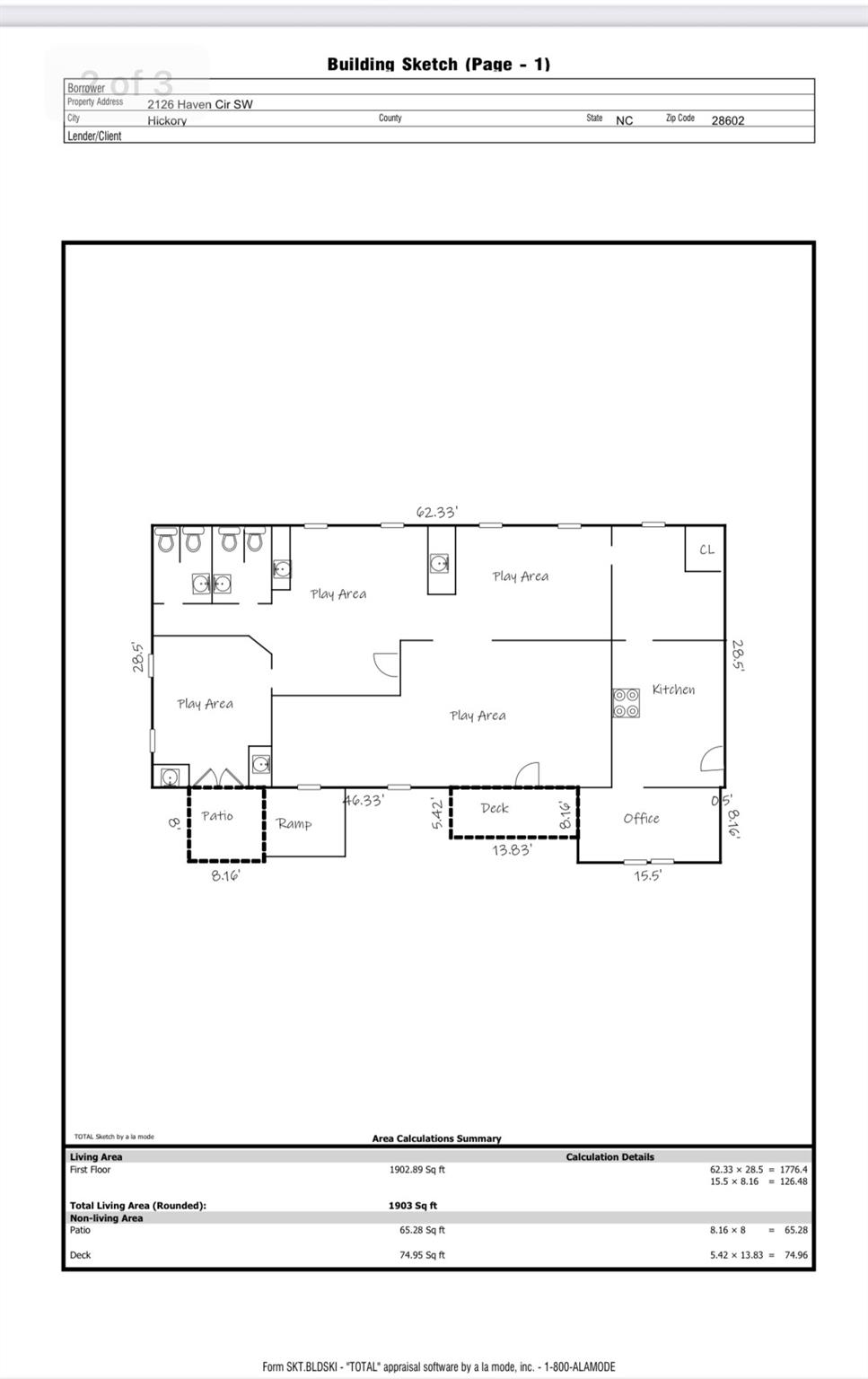
Located right off of Hwy 321 across from the Broyhill Civic Center, this centrally located commercial property is easy to get to. For the last 20+ years, 2126 Haven Circle has been the home of a beloved childcare center. And can still be a day care center. However, plenty of other business opportunities can be made here as well. Plenty of parking, plenty of fencing AND room to grow in the 1800+ square foot walk out basement. This basement is ready for future expansion. Significant amount of money was spent to waterproof this space to use! Also, a brand-new HVAC system was installed in 2021 for the building. And a new roof was installed in 2019! Furnishings are negotiable. Are you looking for a property to start/grow a business? This is it! Come take a look.

Property Summary
Property Type: Commercial Sale Property Subtype : Business
Year Built : 1974 Construction Type : Site Built
Lot Size : 1.4 Acres
More Information
  • Roof : Shingle
  • Heating : Heat Pump
  • Cooling : Heat Pump
  • Water Source : City
  • Road : Publicly Maintained Road
  • Possible Use : Commercial

Based on information submitted to the MLS GRID as of 11-16-2025 19:55:04 UTC All data is obtained from various sources and may not have been verified by broker or MLS GRID. Supplied Open House Information is subject to change without notice. All information should be independently reviewed and verified for accuracy. Properties may or may not be listed by the office/agent presenting the information.

Listed By
Boyd & Hassell Industrial-Commercial
April B Hewitt
828-238-3079
Contact Us