00 Mt. Wesley Church Road

00 Mt. Wesley Church Road

Hiddenite, NC 28636
$229,000

  • Bedrooms: 4
  • Bathrooms: 2
  • Lot Size: 0.65 Acres
Description

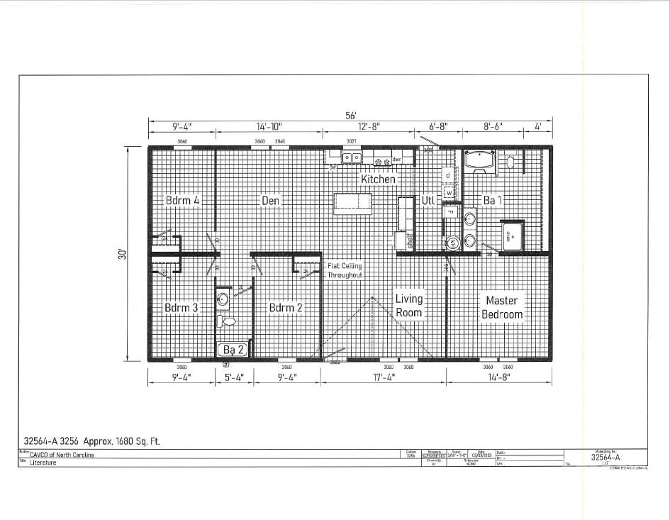
New Construction Home – Country Living on 0.65 Acres Welcome home to this brand-new build nestled in a quiet, country community. Enjoy peaceful surroundings and the charm of rural living while staying within easy reach of town conveniences. 0.65-Acre Lot offering space and privacy Quiet Community with scenic country surroundings Same exterior colors as shown in reference photos Interior photos are staged and for representation only – actual finishes and layout may vary This new home offers the perfect blend of modern comfort and country charm — ideal for anyone seeking a fresh start in a relaxed, peaceful setting. Pictures are a rendering, floor plan will be the same, colors may be different from initial rendering.

Property Summary
Property Type: Residential Property Subtype : Single Family Residence
Year Built : 2025 Construction Type : Manufactured
Lot Size : 0.65 Acres Living Area : 1,680 sqft
Appliances
  • Dishwasher
  • Electric Oven
  • Refrigerator
More Information
  • Construction : Vinyl
  • Parking : None
  • Heating : Central
  • Cooling : Central Air
  • Water Source : Well
  • Road : Publicly Maintained Road
  • Listing Terms : Cash, Conventional, FHA, VA Loan

Based on information submitted to the MLS GRID as of 11-13-2025 16:30:05 UTC All data is obtained from various sources and may not have been verified by broker or MLS GRID. Supplied Open House Information is subject to change without notice. All information should be independently reviewed and verified for accuracy. Properties may or may not be listed by the office/agent presenting the information.

Listed By
Whitetail Properties Real Estate LLC
Chip Camp
704-473-3833
Contact Us