3716 Sand Wedge Drive

3716 Sand Wedge Drive

Gastonia, NC 28056
$69,000

  • Lot Size: 0.76 Acres
Description

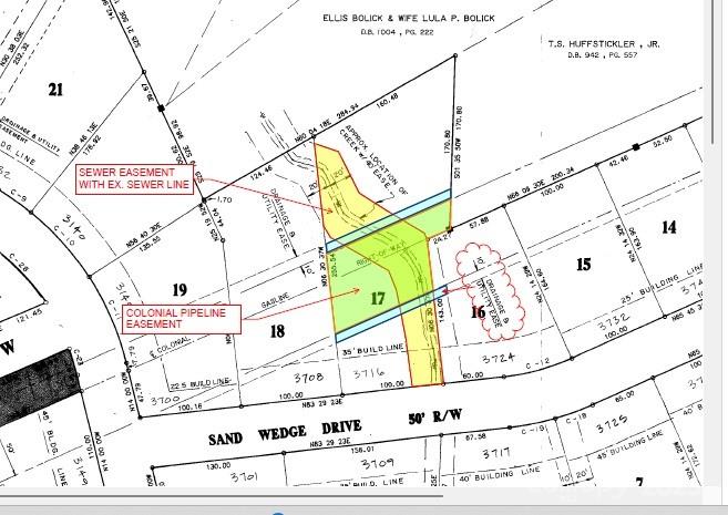
Build Your Dream Home in Fairfield at the Club : Discover the opportunity to create your ideal residence in one of Gastonia’s most desirable communities—Fairfield at the Club. Located within the highly regarded Cramerton Middle School district and surrounded by a well-maintained, welcoming neighborhood, this lot provides an exceptional foundation for your future home. Important Details Before Submitting an Offer: - Access: There is currently no driveway or access path to the lot. To establish entry, a culvert or similar structure will need to be installed to cross the designated easements. - City Guidance: The sellers have consulted with the City of Gastonia Engineering Department, which has confirmed that installing a culvert from the front of the lot is a feasible solution. Relevant correspondence with the city is included in the listing documents. - Buyer Due Diligence: Prospective buyers are strongly encouraged to contact both the City of Gastonia Engineering and Zoning Departments to review their development plans and proposed culvert installation prior to purchase. Home Requirements: - Minimum 3,000 sq ft total, including at least 2,500 sq ft of heated living space. - All home plans must be submitted to and approved by the Fairfield at the Club Architectural Review Board to ensure alignment with neighborhood standards. *** Don’t miss this rare opportunity to bring your vision to life in a vibrant, established community!

Property Summary
Property Type: Land Property Subtype : Lot
Lot Size : 0.76 Acres
Property Features
  • Wooded
More Information
  • Water Source : City, Tap Fee Required
  • Road : Publicly Maintained Road
  • Listing Terms : Cash, Conventional, FHA
  • Possible Use : Residential

Based on information submitted to the MLS GRID as of 11-13-2025 12:35:05 UTC All data is obtained from various sources and may not have been verified by broker or MLS GRID. Supplied Open House Information is subject to change without notice. All information should be independently reviewed and verified for accuracy. Properties may or may not be listed by the office/agent presenting the information.

Listed By
Realty One Group Revolution
Malleswar Varikuti
704-533-3334
Contact Us