327 Johnson Dairy Road

327 Johnson Dairy Road

Mooresville, NC 28115
$600,000

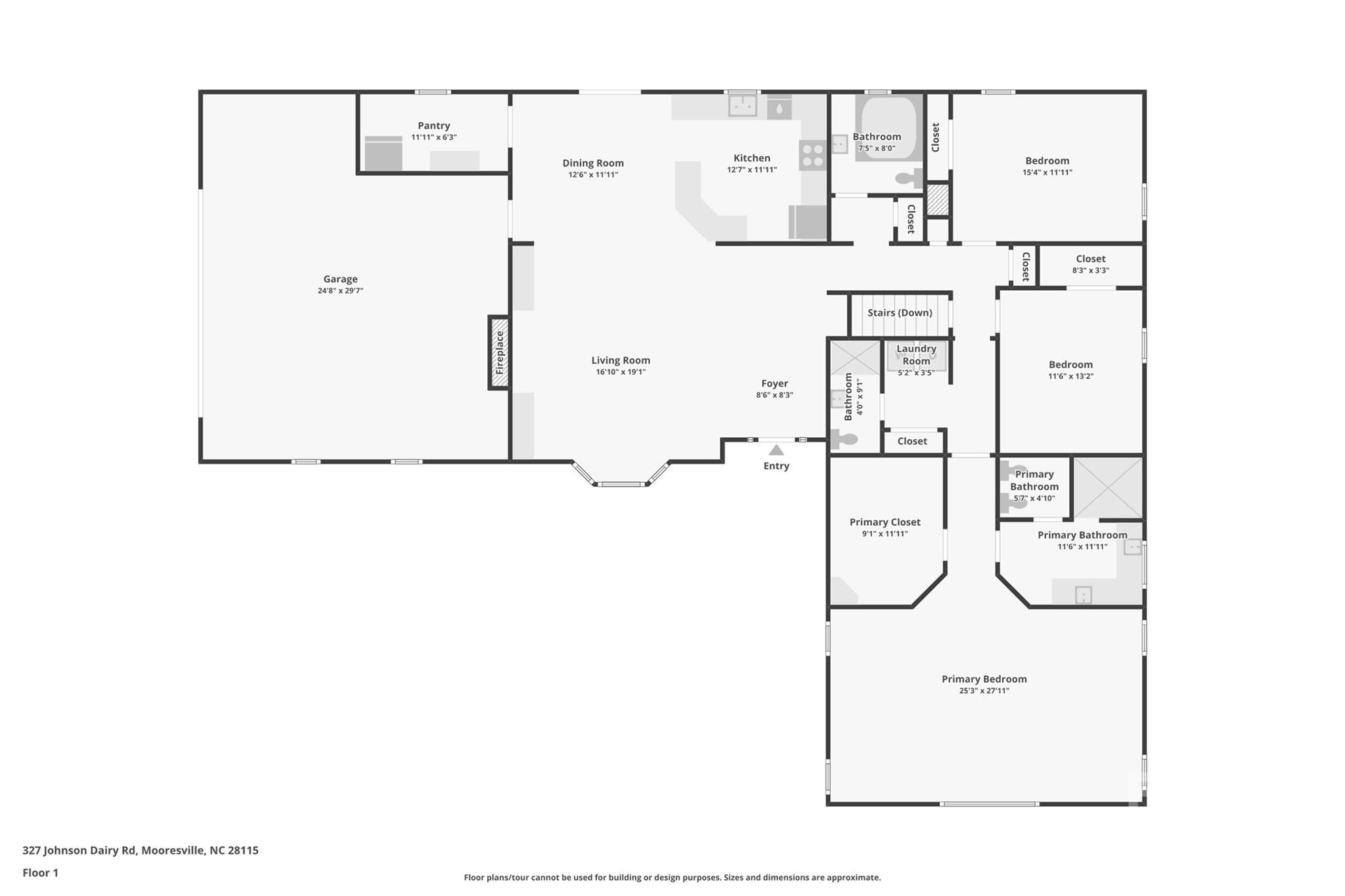
  • Bedrooms: 3
  • Bathrooms: 4
  • Lot Size: 2.33 Acres
Description

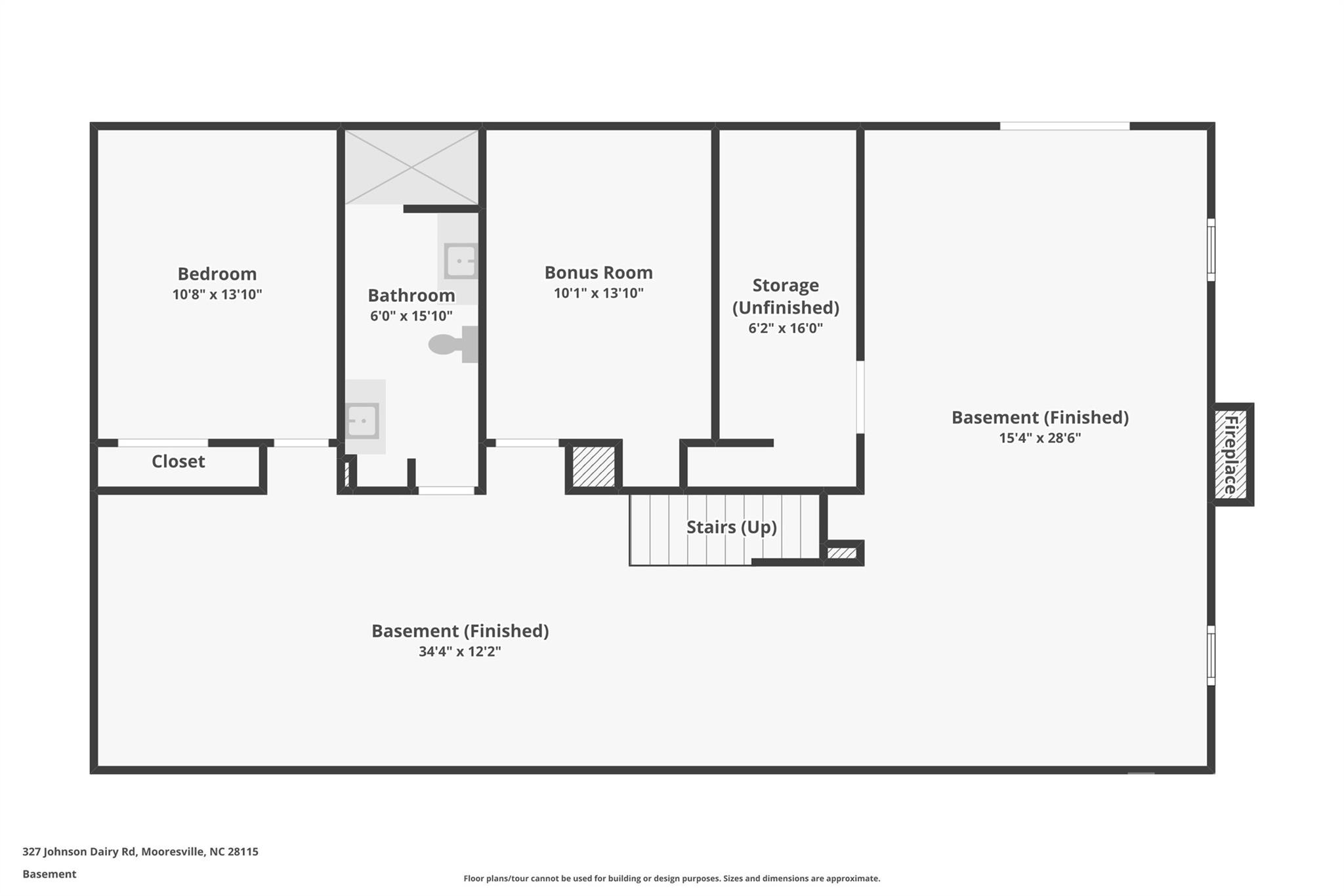
PRICED BELOW TAX VALUE! Welcome to your serene retreat! This brick ranch home is nestled on 2.33 rolling acres, seamlessly backing up to the picturesque Dye Creek Greenway. As you step inside, you'll be captivated by the spacious layout featuring an oversized primary suite complete with a custom walk-in closet, providing ample storage and style. A delightful surprise awaits in the form of a hidden door leading to a generous walk-in pantry, perfect for all your culinary needs. The finished basement adds versatility, ideal for entertainment or relaxation. Step outside to discover your own private oasis, highlighted by a sparkling above-ground pool, perfect for summer gatherings. The property also boasts several outbuildings, offering endless possibilities for storage, hobbies, or even a workshop. Experience the tranquility of country living while being just a stone's throw away from shopping, dining, and outdoor adventures. Plus enjoy a $3500 lender credit with our preferred lender. Contact me for details.

Property Summary
Property Type: Residential Property Subtype : Single Family Residence
Year Built : 1973 Construction Type : Site Built
Lot Size : 2.33 Acres Living Area : 3,894 sqft
Property Features
  • Garage
  • Breakfast Bar
  • Open Floorplan
  • Pantry
  • Walk-In Closet(s)
  • Walk-In Pantry
  • Fireplace
  • Deck
Appliances
  • Dishwasher
  • Microwave
More Information
  • Construction : Brick Full
  • Parking : Attached Garage, Garage Faces Side
  • Heating : Heat Pump
  • Cooling : Ceiling Fan(s), Central Air
  • Water Source : Well
  • Road : Publicly Maintained Road
  • Listing Terms : Cash, Conventional, VA Loan

Based on information submitted to the MLS GRID as of 11-01-2025 03:00:05 UTC All data is obtained from various sources and may not have been verified by broker or MLS GRID. Supplied Open House Information is subject to change without notice. All information should be independently reviewed and verified for accuracy. Properties may or may not be listed by the office/agent presenting the information.

Listed By
Howard Hanna Allen Tate Mooresville/LKN
Allyson Burns
704-928-6108
Contact Us