26 Governors View Road

26 Governors View Road

Asheville, NC 28805
$646,000

  • Bedrooms: 3
  • Bathrooms: 3
  • Lot Size: 0.79 Acres
Description

Rare .79-acre private lot near downtown hosts this custom-rebuilt 1947 bungalow—renovated down to the studs with exceptional craftsmanship. Every inch reflects quality: white oak floors, handcrafted tile and woodwork, and a stone fireplace anchoring the living room. The vaulted kitchen features skylights and custom French doors opening to a covered deck, large stone patio, and expansive fenced backyard—perfect for hosting and outdoor living. The main level offers a primary suite with ensuite bath, study/bedroom, half-bath, and laundry. Upstairs includes a guest suite with full bath and abundant dry, insulated storage. Upgrades include all-new systems, new kitchen and appliances, plumbing, electric, on-demand water heater, closed-cell foam insulation, and seven new double-pane windows (2023). Ipe hardwood front porch and large shed complete this private, move-in-ready retreat just minutes from downtown.

Property Summary
Property Type: Residential Property Subtype : Single Family Residence
Year Built : 1947 Construction Type : Site Built
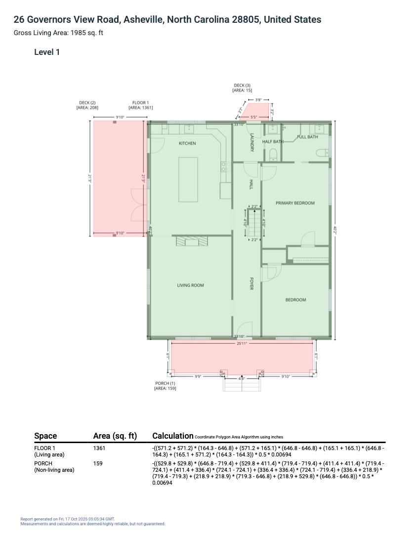
Lot Size : 0.79 Acres Living Area : 1,985 sqft
Property Features
  • Wooded
  • Storage
  • Insulated Window(s)
  • Fireplace
  • Covered Patio
  • Deck
Appliances
  • Dishwasher
  • Microwave
  • Oven
  • Refrigerator
More Information
  • Construction : Hardboard Siding
  • Roof : Metal
  • Parking : Driveway
  • Heating : Heat Pump
  • Cooling : Central Air, Heat Pump
  • Water Source : City
  • Road : Publicly Maintained Road
  • Listing Terms : Cash, Conventional, FHA, USDA Loan, VA Loan

Based on information submitted to the MLS GRID as of 10-21-2025 00:10:05 UTC All data is obtained from various sources and may not have been verified by broker or MLS GRID. Supplied Open House Information is subject to change without notice. All information should be independently reviewed and verified for accuracy. Properties may or may not be listed by the office/agent presenting the information.

Listed By
NextHome Partners
Jonathan Gonzalez
828-450-6056
Contact Us