1049 Pinecone Avenue

1049 Pinecone Avenue

Indian Land, SC 29707
$663,000

  • Bedrooms: 3
  • Bathrooms: 3
  • Lot Size: 0.19 Acres
Description

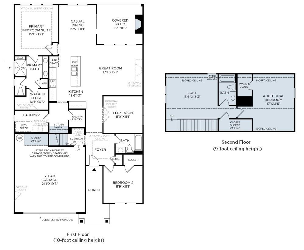
The casual dining area is adjacent to the spacious kitchen with butler's pantry and provides a convenient & intimate setting for entertaining. It overlooks the covered porch with stone, gas log fireplace, ideal for enjoying those outdoor times. The spacious great room is perfectly situated to host large gatherings. Create your ideal living space with the generous flex room located on the first floor. The lovely primary bedroom offers a comfortable retreat and a lavish bath. A 2nd floor flex room with adjacent guest bedroom with walk in closet and full bath offer private accommodations for your guest. Located in The Pines at Sugar Creek, a vibrant 55+ community designed for low-maintenance living and an active lifestyle. Community amenities are underway & include a pool, spa, pickleball, tennis & bocce courts, fitness center, clubhouse & more. Pricing reflects the base home price, structural options and homesite premium only. Design upgrades are not included, for a limited time, buyer can select their own interior features. Prices subject to change.

Property Summary
Property Type: Residential Property Subtype : Single Family Residence
Year Built : 2026 Construction Type : Site Built
Lot Size : 0.19 Acres Living Area : 2,308 sqft
Property Features
  • Cleared
  • Level
  • Garage
  • Breakfast Bar
  • Cable Prewire
  • Kitchen Island
  • Open Floorplan
  • Pantry
  • Split Bedroom
  • Walk-In Closet(s)
  • Walk-In Pantry
  • Insulated Window(s)
  • Fireplace
  • Covered Patio
  • Front Porch
  • Rear Porch
Appliances
  • Dishwasher
  • Disposal
  • Gas Cooktop
  • Microwave
More Information
  • Construction : Fiber Cement, Stone Veneer
  • Roof : Architectural Shingle
  • Parking : Attached Garage, Garage Door Opener
  • Heating : Forced Air, Natural Gas
  • Cooling : Central Air, Zoned
  • Water Source : County Water
  • Road : Private Maintained Road
  • Listing Terms : Cash, Conventional, FHA, VA Loan

Based on information submitted to the MLS GRID as of 12-04-2025 11:01:05 UTC All data is obtained from various sources and may not have been verified by broker or MLS GRID. Supplied Open House Information is subject to change without notice. All information should be independently reviewed and verified for accuracy. Properties may or may not be listed by the office/agent presenting the information.

Listed By
Toll Brothers Real Estate Inc
Cathy Wiesneth
847-341-8655
Contact Us