2952 Fishing Creek Church Road

2952 Fishing Creek Church Road

Rock Hill, SC 29730
$1,250,000

  • Bedrooms: 4
  • Bathrooms: 4
  • Lot Size: 15.7 Acres
Description

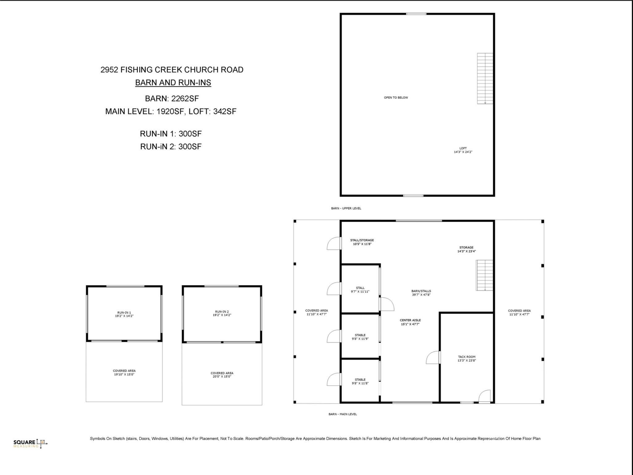
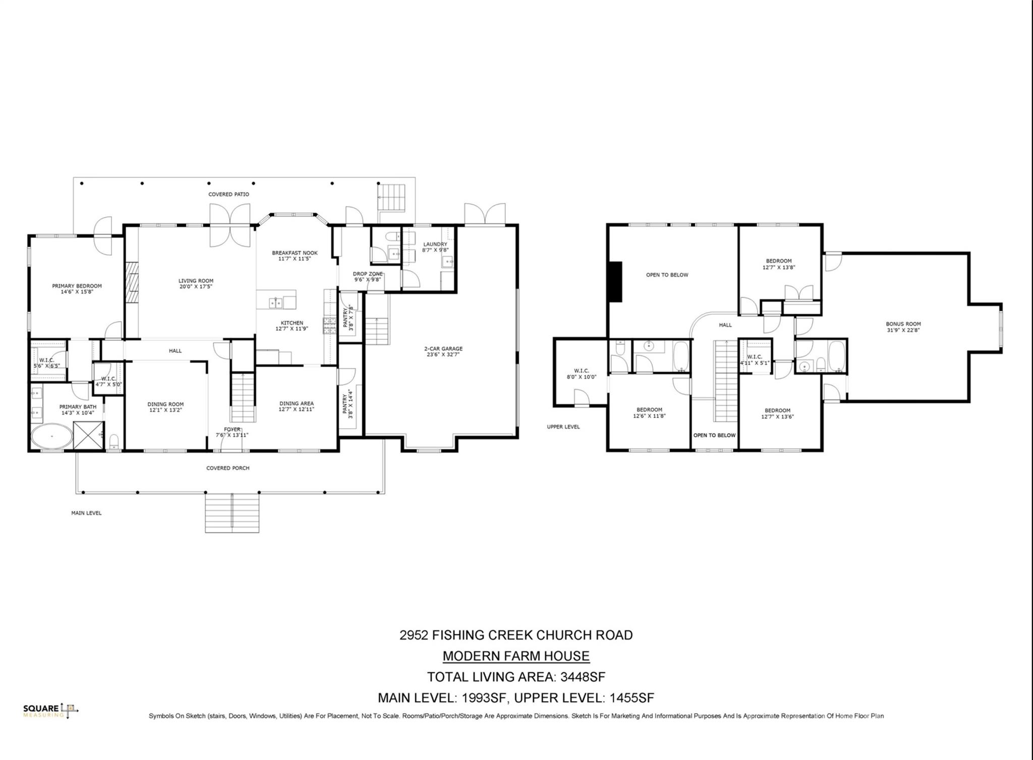
Exceptional 15.7-Acre Farm with Custom Home, Solar Power & Horse Facilities ~ Welcome to your dream farmstead! This 15.7-acre property combines modern efficiency with classic Southern charm, featuring a 3,440 sq. ft. custom-built plantation-style home and turnkey agricultural amenities ready for recreational enjoyment, horses, livestock, or hobby farming. The 4-bedroom, 3.5-bath home offers spacious living with quality craftsmanship throughout—high ceilings, custom trim, and wide covered porches perfect for taking in the serene views. The open-concept kitchen and living area are ideal for family gatherings after a day on the farm, while the primary suite on the main level provides a quiet retreat with a spa-style bath and generous closet space. Two large walk in pantries, chef inspired appliances and ample counter space are ideal for your family cook. Upstairs are 3 additional bedrooms and oversized bonus room with its own closet space. The home has 2 natural gas tankless hot water heaters. Designed for the working or recreational farmer, this property includes: * A 4-stall barn with a large tack room, feed storage, and wide overhangs on each side. * Two run-in sheds, each with large fenced paddocks for horses or livestock * Additional storage areas for equipment and supplies * 3 stall shed row barn for smaller livestock * Chicken coop with large fully enclosed run * Property perimeter fully fenced and gated. - 3 sides board fence and rear line in wire * Productive, gently rolling pastureland ideal for grazing or future agricultural use. * 2 wells on property Sustainability meets practicality with a fully transferable Enphase solar panel system and energy storage servicing both the home and barn—keeping energy costs low and operations efficient. Located in a peaceful rural setting with easy access to Rock Hill, SC and Charlotte, NC, this property offers the perfect blend of country lifestyle and commuter convenience.Whether you’re looking to expand your farming goals, dreaming of your own farm property, or simply enjoy the peace and productivity of rural living, this farm offers it all—move-in ready and built to last. ** published previous Property tax amount is based on NON-Owner Occupied - This is NOT the correct amount it will be for a primary residence.

Property Summary
Property Type: Residential Property Subtype : Single Family Residence
Year Built : 2008 Construction Type : Site Built
Lot Size : 15.7 Acres Living Area : 3,448 sqft
Property Features
  • Cleared
  • Pasture
  • Garage
  • Attic Walk In
  • Built-in Features
  • Entrance Foyer
  • Kitchen Island
  • Open Floorplan
  • Pantry
  • Storage
  • Walk-In Pantry
  • Other - See Remarks
  • Insulated Window(s)
  • Fireplace
Appliances
  • Exhaust Fan
  • Exhaust Hood
  • Gas Cooktop
  • Ice Maker
  • Microwave
  • Oven
  • Plumbed For Ice Maker
  • Self Cleaning Oven
  • Tankless Water Heater
  • Wall Oven
More Information
  • Construction : Hardboard Siding
  • Roof : Architectural Shingle
  • Parking : Detached Carport, Circular Driveway, Driveway, Attached Garage, Garage Door Opener, Garage Faces Side, Keypad Entry
  • Heating : Central
  • Cooling : Central Air
  • Water Source : Well
  • Road : Publicly Maintained Road
  • Listing Terms : Cash, Conventional, FHA, USDA Loan, VA Loan

Based on information submitted to the MLS GRID as of 12-04-2025 11:01:05 UTC All data is obtained from various sources and may not have been verified by broker or MLS GRID. Supplied Open House Information is subject to change without notice. All information should be independently reviewed and verified for accuracy. Properties may or may not be listed by the office/agent presenting the information.

Listed By
EXP Realty LLC Rock Hill
Monica Faulkner
803-230-4727
Contact Us