720 Dogwood Lane

720 Dogwood Lane

Davidson, NC 28036
$1,989,800

  • Bedrooms: 4
  • Bathrooms: 5
  • Lot Size: 0.29 Acres
Description

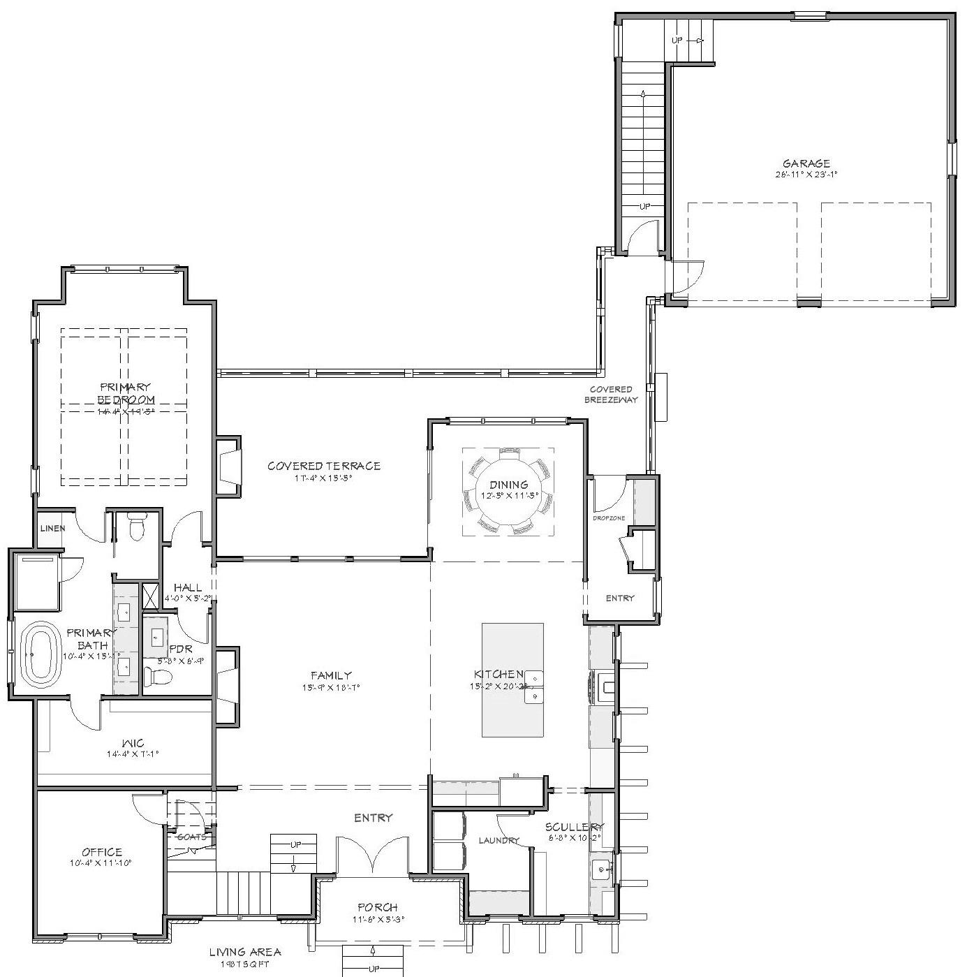
Craigmore Cottage: Modern English Arts & Crafts style with a combination of painted brick, lap siding and Board n Batten to be constructed by E.S. Johnson Builders. On quiet Dogwood Lane. Primary bedroom is on the main level which features an open floor plan, office and generous outdoor living. The covered terrace features a fire place. The garage features unfinished space above which can be used as a second living quarters, office or studio. Walk to Historic Downtown Davidson with its Restaurants, Boutiques, Farmers Market and Davidson College. Convenient to all Davidson has to offer.

Property Summary
Property Type: Residential Property Subtype : Single Family Residence
Year Built : 2025 Construction Type : Site Built
Lot Size : 0.29 Acres Living Area : 3,101 sqft
Appliances
  • Bar Fridge
  • Gas Cooktop
  • Microwave
More Information
  • Construction : Brick Partial, Hardboard Siding
  • Roof : Shingle
  • Parking : Attached Garage, Garage Faces Front
  • Heating : Central, Forced Air, Natural Gas
  • Cooling : Central Air
  • Water Source : City
  • Road : Publicly Maintained Road
  • Listing Terms : Cash, Construction Perm Loan, Conventional

Based on information submitted to the MLS GRID as of 10-09-2025 20:40:04 UTC All data is obtained from various sources and may not have been verified by broker or MLS GRID. Supplied Open House Information is subject to change without notice. All information should be independently reviewed and verified for accuracy. Properties may or may not be listed by the office/agent presenting the information.

Listed By
Howard Hanna Allen Tate Davidson
Clark Goff
704-996-0948
Contact Us