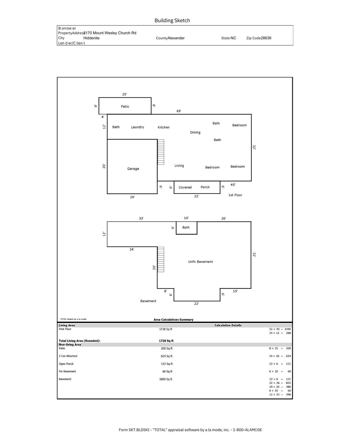
2170 Mt. Wesley Church Road

2170 Mt. Wesley Church Road

Hiddenite, NC 28636
$449,900

  • Bedrooms: 3
  • Bathrooms: 4
  • Lot Size: 5.11 Acres
Description

BACK ON THE MARKET AT NO FAULT OF SELLERS! Discover this spacious 3 bedroom, 3.5 bath brick home nestled on 5.11 +/- acres of serene countryside. Designed for comfort and functionality, this property offers both privacy and convenience with plenty of room to relax, entertain and enjoy the outdoors. Inside you will find an inviting living space filled with natural lights, a well-appointed kitchen with ample storage and workspace and a large laundry room with an attached half bath. The primary bedroom has an attached ensuite while the two generously sized guest bedrooms share a guest bath. Outside, enjoy expansive acreage perfect for gardening, outdoor activities, or simply soaking up the peaceful setting. This classic brick home combines timeless appeal with durability. You will have plenty of space for future additions, a barn or other improvements. This home blends the charm of country living with modern comforts, making it ideal for families, hobbyists, or anyone seeking a private retreat with room to grow. Don't miss the chance to make this beautiful property your own! Showings will begin 9/15 and professional photos will be added prior to that date. Appliances are included. Property Notes from Seller: Extra insulation overhead; garage is insulated overhead with blown insulation; basement is insulated above drop ceiling; Garage doors are double insulated; commercial guttering, cement drive & house is 6,000 strength of fiberglass reinforced concrete; patio rebar is every 3 inches & tied; heat pump was installed in 2020; septic was last pumped in 2021; 30/40 year roof & liner was replaced in 2016 with extra thick plywood; brick columns for patio dug and set on 3' cement pillars; water heater replaced in February, 2023; drainage all the way around house is 16 ton washed stone & 3' deep; all basement walls are pumped full of cement; basement wall is waterproofed via rubber mat heated to wall (vulcanized).

Property Summary
Property Type: Residential Property Subtype : Single Family Residence
Year Built : 1994 Construction Type : Site Built
Lot Size : 5.11 Acres Living Area : 1,788 sqft
Property Features
  • Cleared
  • Level
  • Rolling Slope
  • Wooded
  • Garage
  • Attic Stairs Pulldown
  • Covered Patio
  • Deck
Appliances
  • Dishwasher
More Information
  • Construction : Brick Full, Vinyl
  • Roof : Shingle
  • Parking : Attached Carport
  • Heating : Heat Pump
  • Cooling : Heat Pump
  • Water Source : County Water
  • Road : Publicly Maintained Road

Based on information submitted to the MLS GRID as of 10-07-2025 15:00:13 UTC All data is obtained from various sources and may not have been verified by broker or MLS GRID. Supplied Open House Information is subject to change without notice. All information should be independently reviewed and verified for accuracy. Properties may or may not be listed by the office/agent presenting the information.

Listed By
Hartness Hometown Properties
Michelle Hartness
828-320-5621
Contact Us