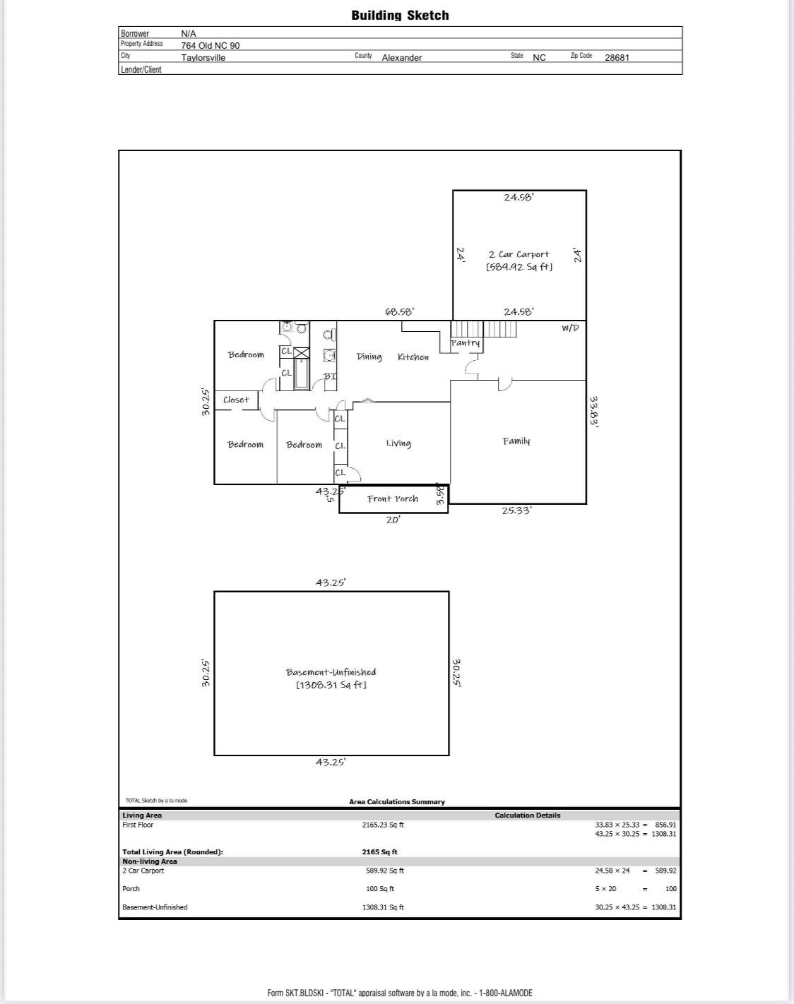
764 Old Nc 90 Highway

764 Old Nc 90 Highway

Taylorsville, NC 28681
$529,000

  • Bedrooms: 3
  • Bathrooms: 2
  • Lot Size: 28 Acres
Description

This timeless brick ranch on 28 Acres has room to roam and space to grow. Discover the charm and potential of this classic 1965 brick ranch, offering 2,165 heated square feet of comfortable living space on a breathtaking 28-acre parcel. With 3 bedrooms, 2 full baths, and an unfinished basement, and attached carport, this property is a rare blend of vintage character and wide-open opportunity. The main level features an eat-in kitchen, butler's pantry, main floor laundry and family room in addition to the bedrooms and baths. Moreover, there is a large bonus room/flex space that could be another family room, rec space or music room. It was once used as a dance hall and includes a wood burning fireplace. There are original hardwood floors and mid-century details throughout. The unfinished basement – perfect for storage, workshop, or future expansion includes a woodstove. The land features 28 acres of rolling pasture, mature woods, and privacy. Ideal for farming, recreation, or building additional homes, there is abundant wildlife and peaceful surroundings. A mobile home and large storage building are included with this property as well. Great location just minutes from downtown Taylorsville, this property offers the tranquility of country living with the convenience of town amenities. Whether you're dreaming of a homestead, a hobby farm, or a private retreat, this property is ready to welcome your vision! Call today for your showing!

Property Summary
Property Type: Residential Property Subtype : Single Family Residence
Year Built : 1965 Construction Type : Site Built
Lot Size : 28 Acres Living Area : 2,165 sqft
Property Features
  • Pasture
  • Private
  • Rolling Slope
  • Wooded
  • Fireplace
Appliances
  • Electric Range
More Information
  • Construction : Brick Full
  • Parking : Attached Carport
  • Heating : Central
  • Cooling : Central Air
  • Water Source : Well
  • Road : Publicly Maintained Road
  • Listing Terms : Cash, Conventional, FHA, USDA Loan, VA Loan

Based on information submitted to the MLS GRID as of 10-03-2025 04:24:05 UTC All data is obtained from various sources and may not have been verified by broker or MLS GRID. Supplied Open House Information is subject to change without notice. All information should be independently reviewed and verified for accuracy. Properties may or may not be listed by the office/agent presenting the information.

Listed By
WEICHERT REALTORS-LKN Partners
Kelli Moore
828-234-5944
Contact Us