1804 Tom Joye Road

1804 Tom Joye Road

Clover, SC 29710
$289,000

  • Bedrooms: 3
  • Bathrooms: 2
  • Lot Size: 0.51 Acres
Description

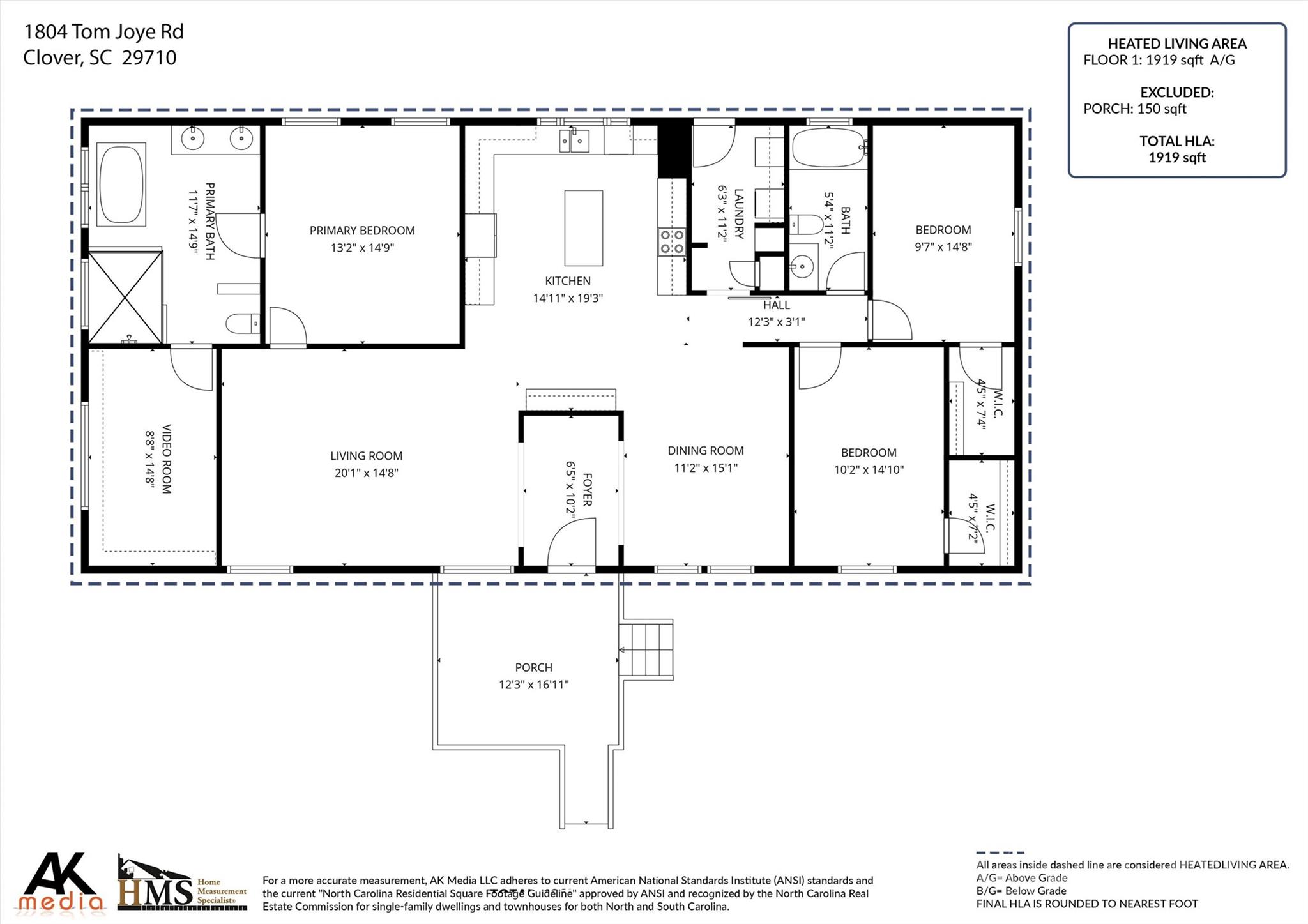
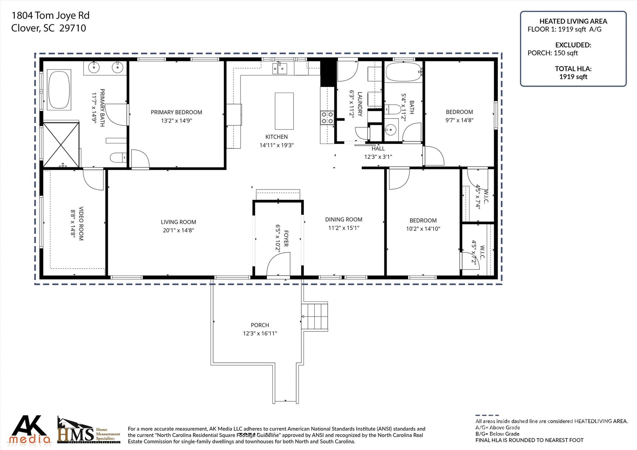
Don’t miss this beautiful home! The inviting front porch features low-maintenance Trex decking and a charming awning that conveys with the property. Inside, the open floor plan begins in the foyer and flows seamlessly throughout. To the right, you’ll find a formal dining room, while to the left is a spacious family room perfect for gatherings. The kitchen is a standout, offering abundant storage and an oversized double-sided bar with seating for family and guests. A sliding barn door leads to the laundry room, which also provides access to the backyard. The primary suite is truly impressive, featuring dual vanities, a relaxing soaking tub, a large walk-in shower, and a massive walk-in closet conveniently connected to the bathroom. Two additional bedrooms also include walk-in closets, ensuring plenty of storage for everyone. Seller also added a metal shed along with electrical hookups for an RV! This home is better than new and move-in ready. Schedule your showing today!

Property Summary
Property Type: Residential Property Subtype : Single Family Residence
Year Built : 2022 Construction Type : Manufactured
Lot Size : 0.51 Acres Living Area : 1,919 sqft
Appliances
  • Electric Oven
  • Electric Range
  • Electric Water Heater
More Information
  • Construction : Vinyl
  • Parking : Parking Space(s), Shared Driveway
  • Heating : Electric
  • Cooling : Electric
  • Water Source : Well
  • Road : Publicly Maintained Road
  • Listing Terms : Cash, Conventional, FHA, VA Loan

Based on information submitted to the MLS GRID as of 11-16-2025 03:46:04 UTC All data is obtained from various sources and may not have been verified by broker or MLS GRID. Supplied Open House Information is subject to change without notice. All information should be independently reviewed and verified for accuracy. Properties may or may not be listed by the office/agent presenting the information.

Listed By
1 Percent Lists Advantage
Lisa Edwards
803-431-0768
Contact Us