8320 Fairview Road

8320 Fairview Road

Mint Hill, NC 28227
$460,000

  • Lot Size: 0.41 Acres
Description

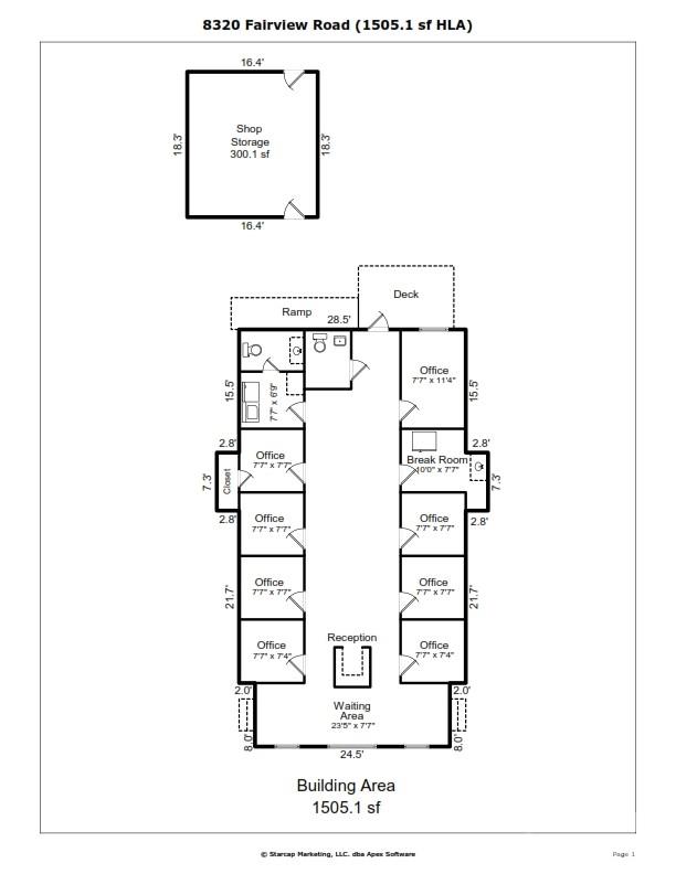
Ideal office space just minuets to/from 485 and the center of Mint Hill. Sitting on the corner of HWY 218 and Cagle Road offering parking in front, side and behind. Currently set up with a reception area, waiting area, 8 small offices, a break room, and two 1/2 bathrooms. (See floor plan). A 300 sq foot detached shop is ideal storage or additional work space depending on the use of the space. Previously a car lot and a tanning salon prior to that. Must contact John Hoard, Mint Hill Town Planner to confirm business use and zoning allowances.

Property Summary
Property Type: Commercial Sale Property Subtype : Office
Year Built : 1946 Construction Type : Site Built
Lot Size : 0.41 Acres
Property Features
  • Corner Lot
More Information
  • Construction : Vinyl
  • Roof : Shingle, Other - See Remarks
  • Road : Publicly Maintained Road, Other - See Remarks
  • Possible Use : Commercial, Other - See Remarks

Based on information submitted to the MLS GRID as of 10-02-2025 03:59:04 UTC All data is obtained from various sources and may not have been verified by broker or MLS GRID. Supplied Open House Information is subject to change without notice. All information should be independently reviewed and verified for accuracy. Properties may or may not be listed by the office/agent presenting the information.

Listed By
1st Choice Properties Inc
Anna Granger
704-650-5707
Contact Us