000 Roanoke Drive

000 Roanoke Drive

Fort Mill, SC 29715
$2,450,000

  • Lot Size: 26 Acres
Description

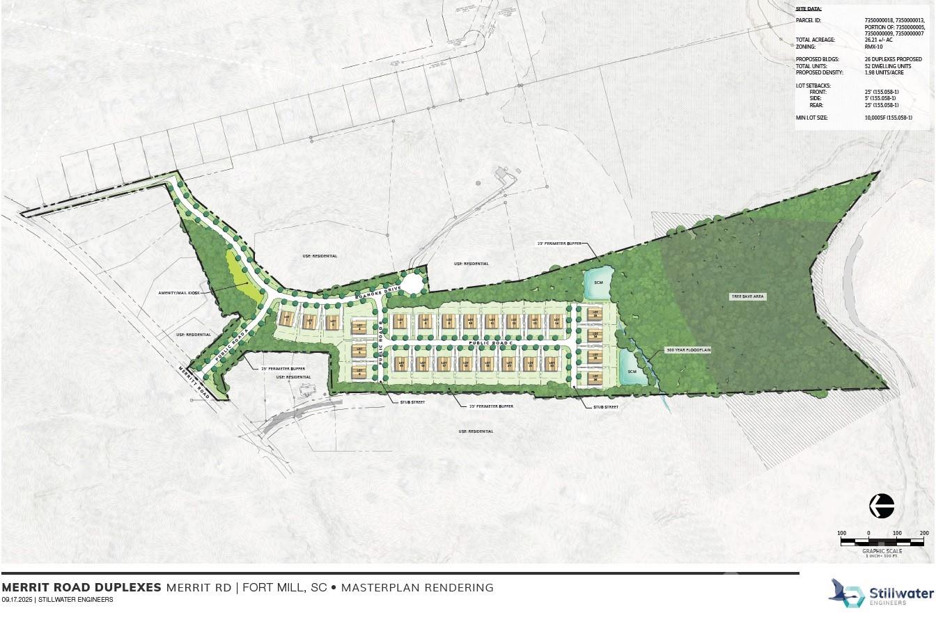
Prime 26-Acre Multifamily Development Opportunity or Secluded Retreat An exceptional opportunity to acquire a high-value 26-acre property in rapidly growing York County, South Carolina located next to the Springfield Golf Course and Carolina Orchards. Strategically zoned RMX-10 (Residential Mixed Use), the site has the ability to develop, 30 SFR home sites on 10,000 sqft. lots, or 26 duplexes (52 units) for rent only, as confirmed by county staff, providing an ideal canvas for a high-demand residential community. This property offers excellent accessibility and is located with close proximity to top-rated public schools and the abundant shopping, dining, and lifestyle amenities of Fort Mill—one of the region’s most desirable growth corridors. Significant due diligence has already been completed, reducing development risk and streamlining the entitlement process. Available reports and approvals include and can be shared with a qualified buyer: Environmental Phase I Report, Geotechnical Report, ALTA Surveys, Wetland Delineation Report, Utility Availability, Traffic Memo, Sketch Plan Review, Zoning Verification Letters, Willingness-to-Serve Letters, Site Plan Renderings With its favorable zoning, completed due diligence, and proximity to excellent schools and retail centers, this site represents a rare opportunity for developers and investors seeking to deliver much-needed housing in one of South Carolina’s most dynamic submarkets.

Property Summary
Property Type: Land Property Subtype : Acreage
Lot Size : 26 Acres
Property Features
  • Sloped
  • Wooded
  • Views
  • Wetlands
More Information
  • Water Source : None
  • Road : Publicly Maintained Road
  • Listing Terms : Cash, Conventional, FHA, FHA 203(K), USDA Loan, VA Loan, Other - See Remarks
  • Possible Use : Development, Farm, Private Estate, Subdevelopment, Timber

Based on information submitted to the MLS GRID as of 11-16-2025 02:14:05 UTC All data is obtained from various sources and may not have been verified by broker or MLS GRID. Supplied Open House Information is subject to change without notice. All information should be independently reviewed and verified for accuracy. Properties may or may not be listed by the office/agent presenting the information.

Listed By
SGR Realty
Brad Czecholinski
704-576-8183
Contact Us