1945 Hendersonville Road

1945 Hendersonville Road

Asheville, NC 28803
$3,000,000

  • Lot Size: 2.55 Acres
Description

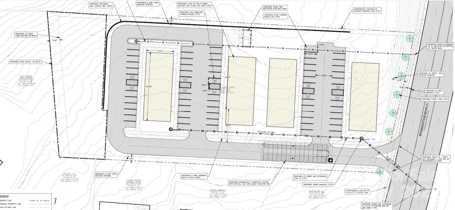
Prime Hendersonville Road development opportunity. 215 feet of frontage just south of Long Shoals Road. Curently zoned RM6 for low density multifamily. Zoning would allow up to 107 units, parking requirements would bring that to 70, see attatched site plan. This property sees an average of 33500 cars pass by daily. Sewer is just across Hendersonville Rd and water, power, and natural gas are readily available. Engineered site plan for a 2 unit medical complex is available, reach out to listing agent for details. Seller is related to listing agent.

Property Summary
Property Type: Land Property Subtype : Acreage
Lot Size : 2.55 Acres
More Information
  • Water Source : City
  • Road : Publicly Maintained Road
  • Listing Terms : Cash, Conventional, FHA, USDA Loan
  • Possible Use : Development, Multi-Family

Based on information submitted to the MLS GRID as of 11-16-2025 17:28:05 UTC All data is obtained from various sources and may not have been verified by broker or MLS GRID. Supplied Open House Information is subject to change without notice. All information should be independently reviewed and verified for accuracy. Properties may or may not be listed by the office/agent presenting the information.

Listed By
Keller Williams Mtn Partners, LLC
Brent Crowell
828-329-6597
Contact Us