00 Kings Mountain Boulevard

00 Kings Mountain Boulevard

Kings Mountain, NC 28086
$2,500,000

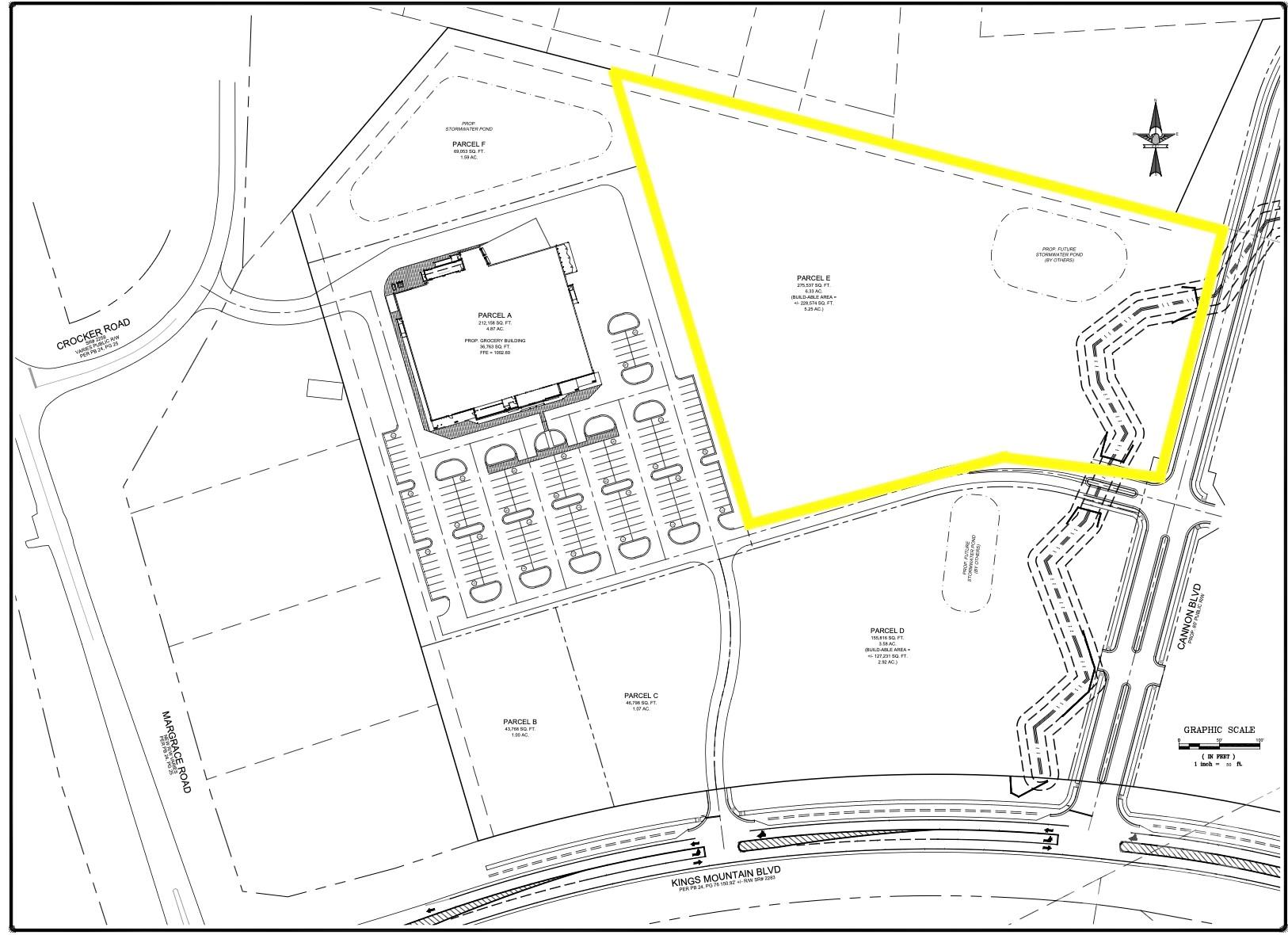
  • Lot Size: 6.33 Acres
Description

An exceptional opportunity to acquire a strategically positioned commercial multi-family development parcel located directly within the highly sought-after Catawba Two Kings Casino growth area. This site sits at the center of an explosive wave of new development, with surrounding proposed projects including a planned grocery store, four commercial outlots, a new section of townhomes, and an active adult living community — all within walking distance. This parcel is ideally suited for multi-family development, offering the opportunity to capture high rental demand from casino employees, nearby businesses, and the growing Kings Mountain population. With the ongoing expansion of the casino and adjacent commercial activity, property values and rental rates in this area are positioned for long-term appreciation.

Property Summary
Property Type: Land Property Subtype : Unimproved Commercial
Lot Size : 6.33 Acres
Property Features
  • Wooded
  • Other - See Remarks
More Information
  • Water Source : Tap Fee Required
  • Road : No Road
  • Listing Terms : Cash
  • Possible Use : Development, Multi-Family

Based on information submitted to the MLS GRID as of 10-01-2025 23:09:05 UTC All data is obtained from various sources and may not have been verified by broker or MLS GRID. Supplied Open House Information is subject to change without notice. All information should be independently reviewed and verified for accuracy. Properties may or may not be listed by the office/agent presenting the information.

Listed By
Jolly Realty Group LLC
Brett Wease
704-477-9458
Contact Us