160 Quail Hollow Drive

160 Quail Hollow Drive

Kings Mountain, NC 28086
$875,000

  • Bedrooms: 3
  • Bathrooms: 2
  • Lot Size: 0.38 Acres
Description

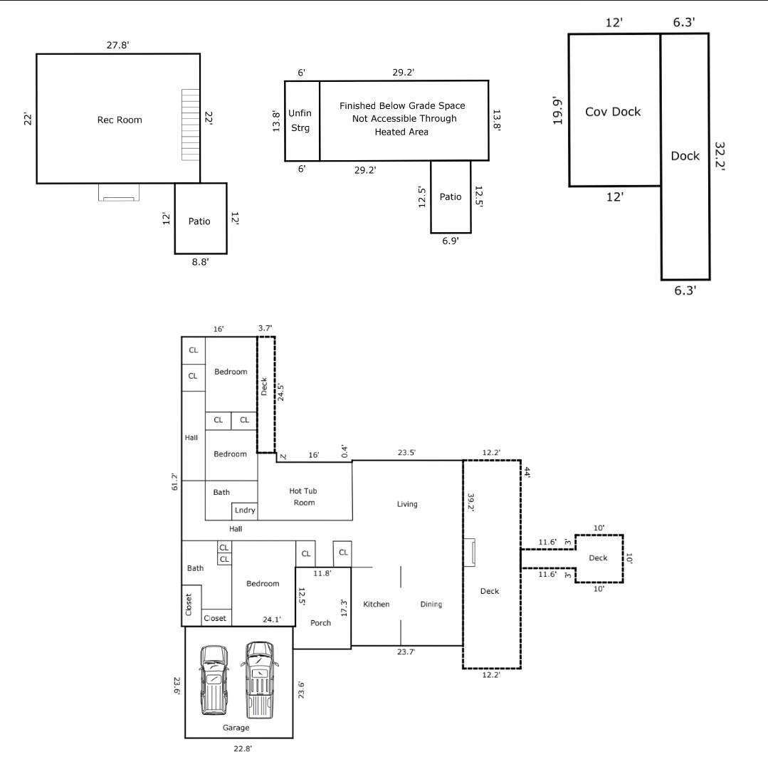
Waterfront on Moss Lake! Stunning home with year-round million-dollar views! This well-maintained 3-bedroom, 2-bath property is full of charm inside and out. Inside, enjoy lake views from every bedroom, a sunroom with a hot tub, and a gas log fireplace in the living room that connects seamlessly to the kitchen and dining area. The spacious primary suite opens directly to the back deck overlooking the lake. The finished basement includes a woodburning fireplace and offers both indoor accessibility and walk-out access to the lake. Outside features a private pier with a covered boat slip and lift, approximately 200 feet of lake frontage, a multi-tiered back deck for entertaining, and an existing invisible fence for pets. Truly a home that makes you feel like you are on vacation while sitting on your own couch or while fishing from your backyard! Additional features include a 2-car garage and a separate upper parking area. Additional 403 SQFT is finished basement not accessible through HLA

Property Summary
Property Type: Residential Property Subtype : Single Family Residence
Year Built : 1976 Construction Type : Site Built
Lot Size : 0.38 Acres Living Area : 3,071 sqft
Property Features
  • Cleared
  • Cul-De-Sac
  • Waterfront
  • Garage
  • Breakfast Bar
  • Entrance Foyer
  • Hot Tub
  • Kitchen Island
  • Open Floorplan
  • Fireplace
  • Deck
Views
  • Water
  • Year Round
Appliances
  • Dishwasher
  • Disposal
  • Gas Range
  • Microwave
  • Refrigerator
  • Self Cleaning Oven
More Information
  • Construction : Brick Partial, Vinyl
  • Roof : Shingle
  • Parking : Driveway, Attached Garage
  • Heating : Baseboard, Central, Natural Gas
  • Cooling : Ceiling Fan(s), Central Air
  • Water Source : County Water, Shared Well
  • Road : Publicly Maintained Road
  • Listing Terms : Cash, Conventional, FHA, USDA Loan, VA Loan

Based on information submitted to the MLS GRID as of 10-01-2025 19:45:05 UTC All data is obtained from various sources and may not have been verified by broker or MLS GRID. Supplied Open House Information is subject to change without notice. All information should be independently reviewed and verified for accuracy. Properties may or may not be listed by the office/agent presenting the information.

Listed By
Hill Real Estate Group
Stefanie Hill
980-238-9394
Contact Us