3838 Avalon Avenue

3838 Avalon Avenue

Charlotte, NC 28208
$799,999

  • Bedrooms: 4
  • Bathrooms: 3
  • Lot Size: 0.159 Acres
Description

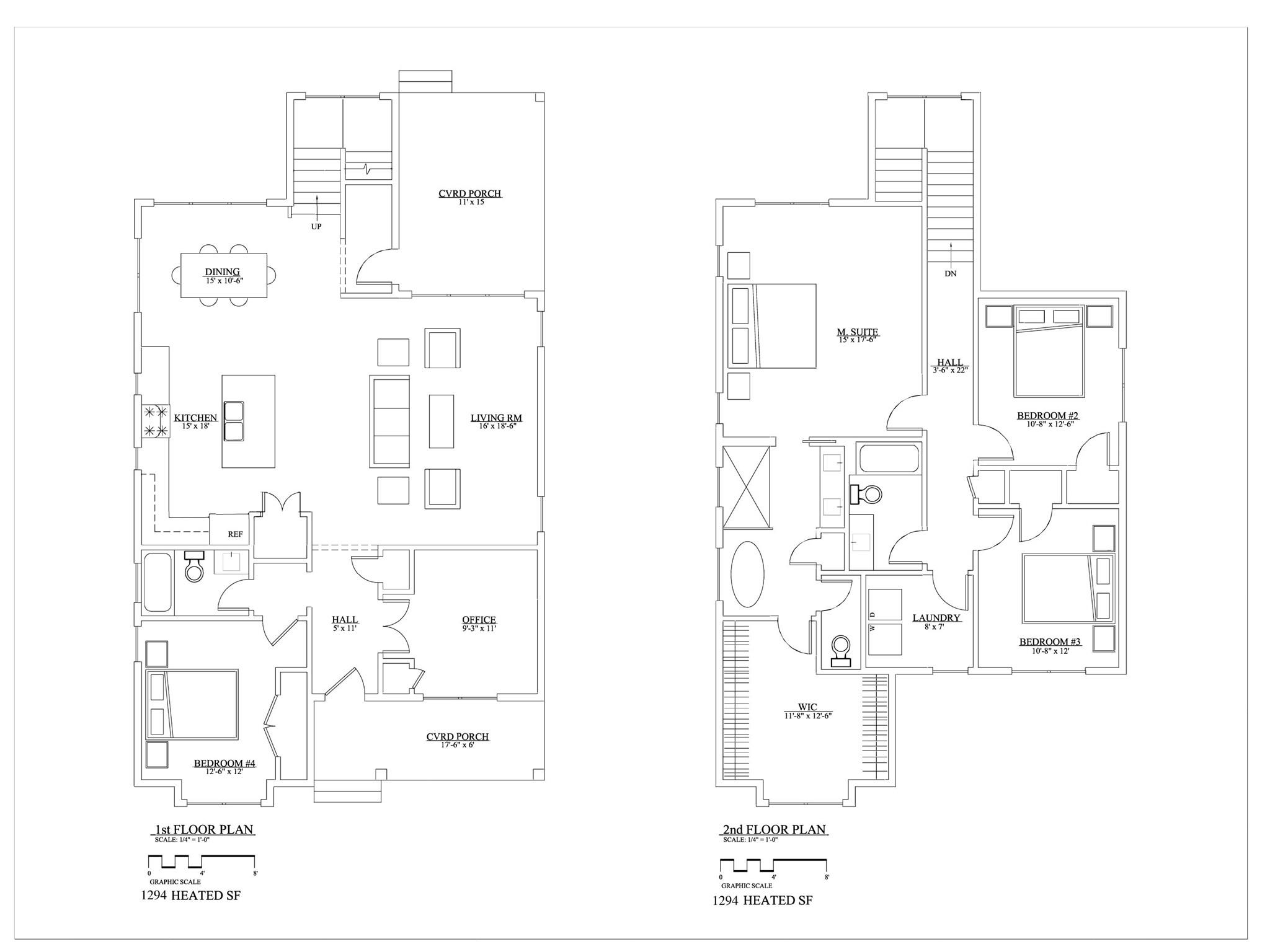
**Home eligible for 4.9% interest rate on a 7 year ARM or 5.99% on 30 year fixed mortgage with 3% down and NO PMI - NO income cap!** Reach out to agent for this lender info or other great lender programs for this home such as another offering 100% financing with no PMI** Welcome to 3838 Avalon! The latest new construction build by Forte Builders (formerly JCCH) in a series of 5 custom homes being built along Avalon Ave. This thoughtfully designed transitional craftsman home is located in a pocket of Enderly Park that is seeing heavy revitalization and is only a moment away from all the development action; coffee shops, restaurants & bars, Coterie Yoga, Xgolf, Lucky Dog Bark & Brew, local shops, Savona Mill and more! Home features an open floor plan, 10' ceilings, spacious rooms and ample storage. Upon arrival, pull behind your electric driveway gate for a private rear entrance into a stylish drop zone, leading into your open main space. Or at the front be greeted off the foyer by bold office space behind glass french doors. Forte’s build quality and finishes go above and beyond - Enjoy high end design detail throughout; heavy trim and moldings, white oak engineered wood floors, custom cabinetry, handmade designer tile, elegant lighting, and earthy tones. Spread out in your generous primary suite and enjoy large bath with fluted soaking tub and ample walk-in closet. 3 additional bedrooms, 2 more full bathrooms and dedicated laundry room. Covered front and back porches add large outdoor living spaces in addition to the large fenced rear yard. Get the best of city adjacent urban living! Agent has interest.

Property Summary
Property Type: Residential Property Subtype : Single Family Residence
Year Built : 2025 Construction Type : Site Built
Lot Size : 0.159 Acres Living Area : 2,588 sqft
Property Features
  • Infill Lot
  • Attic Stairs Pulldown
  • Drop Zone
  • Entrance Foyer
  • Garden Tub
  • Kitchen Island
  • Open Floorplan
  • Pantry
  • Storage
  • Walk-In Closet(s)
  • Advanced Framing
  • Engineered Wood Products
  • Covered Patio
  • Front Porch
  • Patio
  • Porch
  • Rear Porch
Appliances
  • Dishwasher
  • Disposal
  • ENERGY STAR Qualified Refrigerator
  • Exhaust Hood
  • Gas Range
  • Microwave
  • Tankless Water Heater
More Information
  • Construction : Fiber Cement, Hardboard Siding
  • Roof : Architectural Shingle, Metal
  • Parking : Driveway, Electric Gate
  • Heating : Central, Heat Pump
  • Cooling : Central Air
  • Water Source : City
  • Road : Publicly Maintained Road
  • Listing Terms : Cash, Conventional, FHA

Based on information submitted to the MLS GRID as of 12-04-2025 11:01:05 UTC All data is obtained from various sources and may not have been verified by broker or MLS GRID. Supplied Open House Information is subject to change without notice. All information should be independently reviewed and verified for accuracy. Properties may or may not be listed by the office/agent presenting the information.

Listed By
5 Points Realty
Jen Chance
704-318-6011
Contact Us