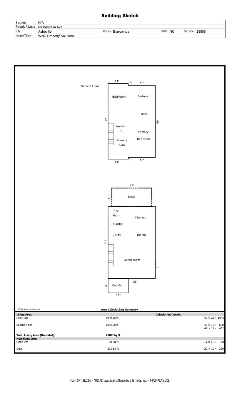
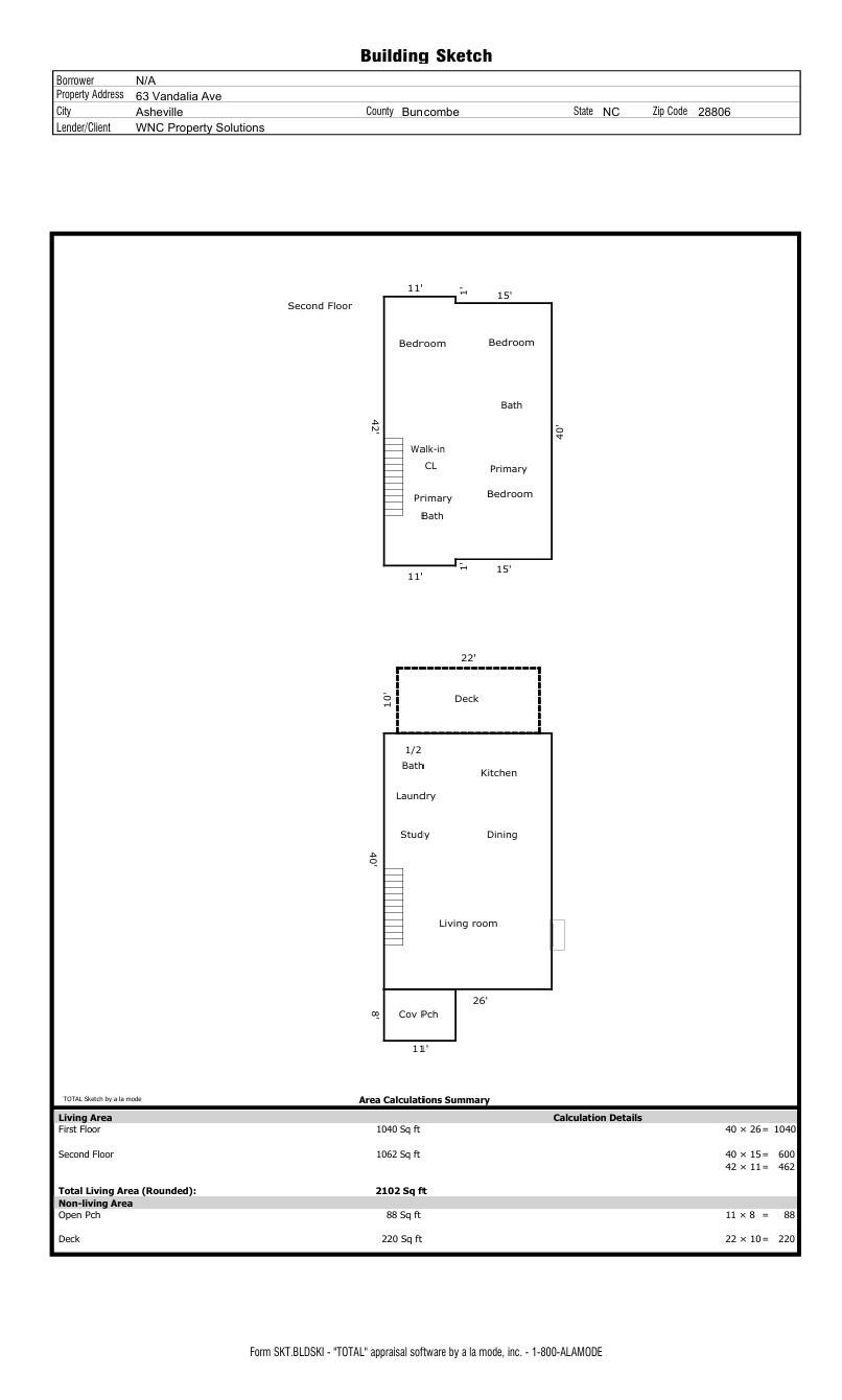
63 Vandalia Avenue

63 Vandalia Avenue

Asheville, NC 28806
$699,000

  • Bedrooms: 3
  • Bathrooms: 3
  • Lot Size: 0.09 Acres
Description

Stunning new construction home in vibrant east West Asheville on a private street with no through traffic! Thoughtfully designed with Green Built certification, the open and spacious floor plan flows seamlessly from the living room to the dining area and into the stylish kitchen featuring soft close cabinets, granite counters, and SS appliances. The first floor also features a bonus room that could function as an office, study, creative space, or playroom adjacent to the dining area. Upstairs, the expansive primary suite is a true retreat with a vaulted ceiling, walk-in closet, and a generously sized bathroom featuring a double vanity, glass enclosed tile shower, and a sleek, modern soaking tub. Two additional bedrooms and another full bath complete the upstairs. This home’s prime location is just a short walk to Haywood Road’s shops and restaurants, and less than 5 minutes to downtown Asheville.

Property Summary
Property Type: Residential Property Subtype : Single Family Residence
Year Built : 2025 Construction Type : Site Built
Lot Size : 0.09 Acres Living Area : 2,102 sqft
Property Features
  • Sloped
  • Kitchen Island
  • Open Floorplan
  • Pantry
  • Walk-In Closet(s)
  • Insulated Window(s)
  • Fireplace
  • Advanced Framing
  • Low VOC Coatings
  • Covered Patio
  • Deck
  • Front Porch
Appliances
  • Disposal
  • ENERGY STAR Qualified Dishwasher
  • ENERGY STAR Qualified Refrigerator
  • Gas Range
  • Gas Water Heater
  • Microwave
More Information
  • Construction : Wood
  • Roof : Metal
  • Parking : Driveway
  • Heating : Electric, Heat Pump
  • Cooling : Ceiling Fan(s), Electric, Heat Pump
  • Water Source : City
  • Road : Publicly Maintained Road

Based on information submitted to the MLS GRID as of 10-02-2025 14:00:05 UTC All data is obtained from various sources and may not have been verified by broker or MLS GRID. Supplied Open House Information is subject to change without notice. All information should be independently reviewed and verified for accuracy. Properties may or may not be listed by the office/agent presenting the information.

Listed By
Seller Solutions
John Duncan
828-776-8101
Contact Us