1410 Samuel Street

1410 Samuel Street

Charlotte, NC 28206
$349,990

  • Bedrooms: 3
  • Bathrooms: 4
  • Lot Size: 0.026 Acres
Description

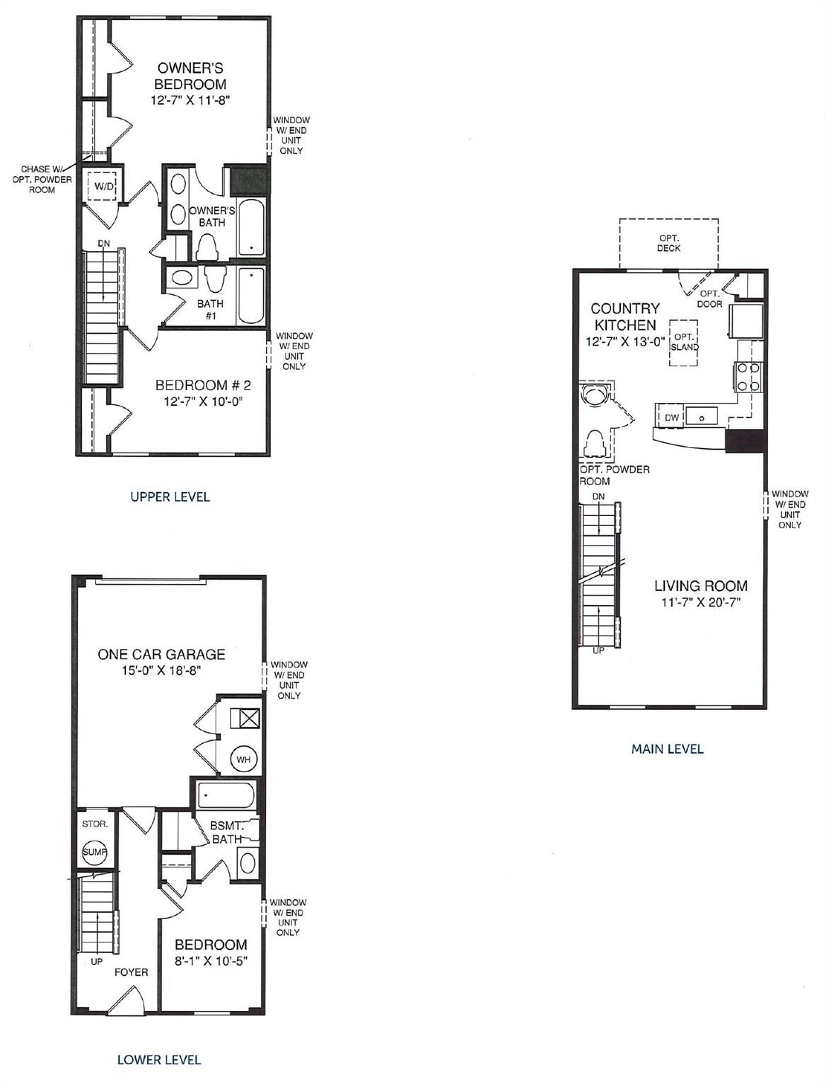
Brand new release! The townhome is situated just two miles north of uptown and approximately 0.75 mile from Camp North End and Heist Brewery. Its proximity to I-77 and I-85 makes commuting easy. The floor plan offers three bedrooms, each with its own bathroom. Additionally, there’s a powder room on the main level for guests. This setup provides flexibility for its occupants or roommates. The kitchen comes equipped with all appliances, including a kitchen island and granite countertops. Cooking and entertaining will be a breeze! The main level features LVP flooring, which is durable and easy to maintain. Plus, there’s a balcony for outdoor relaxation. You’ll have a one-car garage and an additional one-car driveway, ensuring convenient parking. Enjoy spending time at the community green, which adds to the overall value and lifestyle. Overall, this townhome combines functionality with modern amenities. Primary residence or investment opportunity.

Property Summary
Property Type: Residential Property Subtype : Townhouse
Year Built : 2025 Construction Type : Site Built
Lot Size : 0.026 Acres Living Area : 1,420 sqft
Property Features
  • Garage
  • Cable Prewire
  • Entrance Foyer
  • Kitchen Island
  • Pantry
  • Insulated Window(s)
  • Deck
  • Front Porch
Appliances
  • Dishwasher
  • Disposal
  • Electric Oven
  • Electric Range
  • Electric Water Heater
  • Exhaust Hood
  • Microwave
  • Plumbed For Ice Maker
  • Refrigerator
  • Washer/Dryer
More Information
  • Construction : Brick Partial, Fiber Cement
  • Roof : Architectural Shingle
  • Parking : Driveway, Attached Garage, Garage Door Opener, Garage Faces Rear
  • Heating : Electric
  • Cooling : Central Air, Electric
  • Water Source : City
  • Road : Private Maintained Road

Based on information submitted to the MLS GRID as of 11-16-2025 02:14:05 UTC All data is obtained from various sources and may not have been verified by broker or MLS GRID. Supplied Open House Information is subject to change without notice. All information should be independently reviewed and verified for accuracy. Properties may or may not be listed by the office/agent presenting the information.

Listed By
NVR Homes, Inc./Ryan Homes
Timothy OBrien
704-325-4823
Contact Us