12770 Bringle Ferry Road

12770 Bringle Ferry Road

Richfield, NC 28137
$350,000

  • Bedrooms: 2
  • Bathrooms: 1
  • Lot Size: 8.03 Acres
Description

Discover serene country living with this charming 1945-built home, nestled on 8 picturesque acres. This 2-bedroom, 1-bath gem offers a perfect blend of rustic charm, surrounded by mature trees and open land, it provides a tranquil retreat. The property features a 2-car detached garage with additional rooms, an open front storage shed, and an enclosed shed, perfect for all your storage needs. This comes with an additional shop/building with a large carport on a .50-acre lot adds incredible versatility. Located just minutes from High Rock Lake and Tuckertown Reservoir, this property is ideal for outdoor enthusiasts. Whether you enjoy boating, fishing, or simply basking in nature's beauty, this home offers it all. Don't miss your chance to own this unique country retreat!

Property Summary
Property Type: Residential Property Subtype : Single Family Residence
Year Built : 1945 Construction Type : Site Built
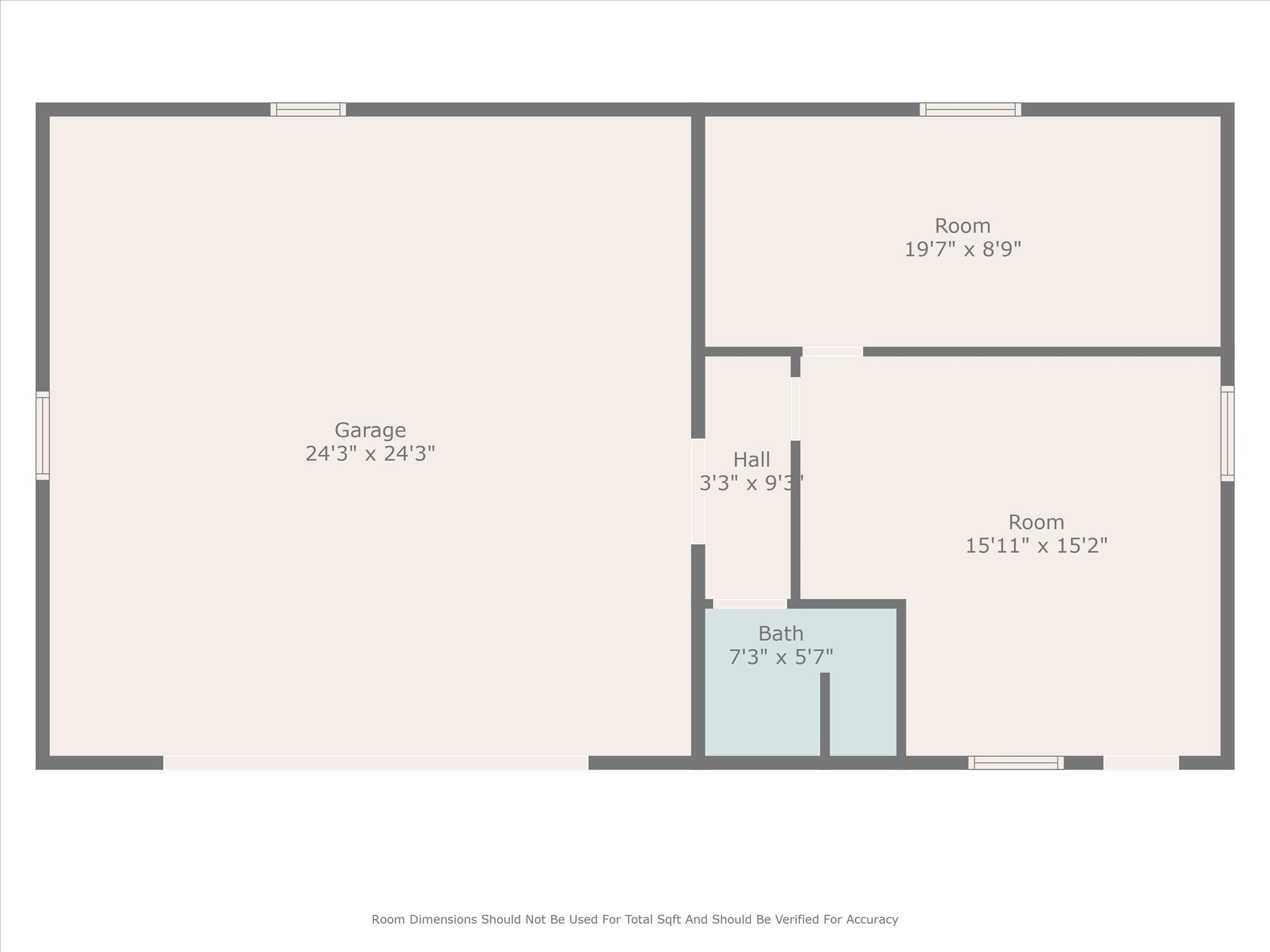
Lot Size : 8.03 Acres Living Area : 1,276 sqft
Appliances
  • Dishwasher
  • Microwave
  • Refrigerator
  • Washer/Dryer
More Information
  • Construction : Block, Vinyl, Wood
  • Parking : Driveway, Detached Garage
  • Heating : Ductless
  • Cooling : Ductless
  • Water Source : Spring
  • Road : Publicly Maintained Road
  • Listing Terms : Cash, Conventional

Based on information submitted to the MLS GRID as of 11-16-2025 02:14:05 UTC All data is obtained from various sources and may not have been verified by broker or MLS GRID. Supplied Open House Information is subject to change without notice. All information should be independently reviewed and verified for accuracy. Properties may or may not be listed by the office/agent presenting the information.

Listed By
EXP Realty LLC Ballantyne
Michael Smith
704-289-7514
Contact Us