3904 Mountain Drive

3904 Mountain Drive

Monroe, NC 28112
$373,000

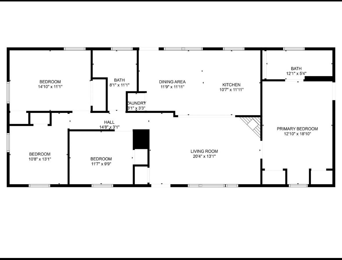
  • Bedrooms: 4
  • Bathrooms: 2
  • Lot Size: 2.45 Acres
Description

** Seller offering Closing Cost to use to buy down your rate or however you see fit with acceptable offer ** If you're seeking country living with acreage, privacy, serene sunset views, this home is the one! This beautifully renovated brick 3 bedroom, 2 bathroom home has an open concept design with a split floorplan. Kitchen updates include new cabinets with soft close drawers, quartz countertops, tile backsplash and SS appliances. Both bathrooms have new tile showers and fixtures. The rest of the upgrades include new roof, LVP flooring, 12 by 16 deck, light fixtures, water heater, exterior doors, duct system, insulation and vapor barrier in the crawlspace. The Hvac is 2 years old and windows were recently replaced. There is an additional room that could be used as an office or den. Septic has been inspected and emptied. Enjoy the fruit trees on property. NO HOA.5 minutes outside of town, 30 minutes from charlotte . Must see to appreciate!

Property Summary
Property Type: Residential Property Subtype : Single Family Residence
Year Built : 1968 Construction Type : Site Built
Lot Size : 2.45 Acres Living Area : 1,612 sqft
Property Features
  • Corner Lot
  • Insulated Window(s)
  • Fireplace
  • Deck
Appliances
  • Dishwasher
  • Electric Cooktop
  • Electric Oven
  • Electric Range
  • Electric Water Heater
  • ENERGY STAR Qualified Dishwasher
  • Microwave
  • Refrigerator with Ice Maker
  • Wine Refrigerator
More Information
  • Construction : Brick Partial, Vinyl
  • Roof : Architectural Shingle
  • Parking : Driveway
  • Heating : Central, Heat Pump
  • Cooling : Ceiling Fan(s), Central Air
  • Water Source : Well
  • Road : Publicly Maintained Road
  • Listing Terms : Cash, Conventional, FHA, USDA Loan, VA Loan

Based on information submitted to the MLS GRID as of 11-16-2025 03:46:04 UTC All data is obtained from various sources and may not have been verified by broker or MLS GRID. Supplied Open House Information is subject to change without notice. All information should be independently reviewed and verified for accuracy. Properties may or may not be listed by the office/agent presenting the information.

Listed By
Lowder Homes Realty LLC
Brittany Lowder
704-960-6902
Contact Us