394 Af Simmons Road

394 Af Simmons Road

Burnsville, NC 28714
$499,000

  • Bedrooms: 2
  • Bathrooms: 2
  • Lot Size: 4.5 Acres
Description

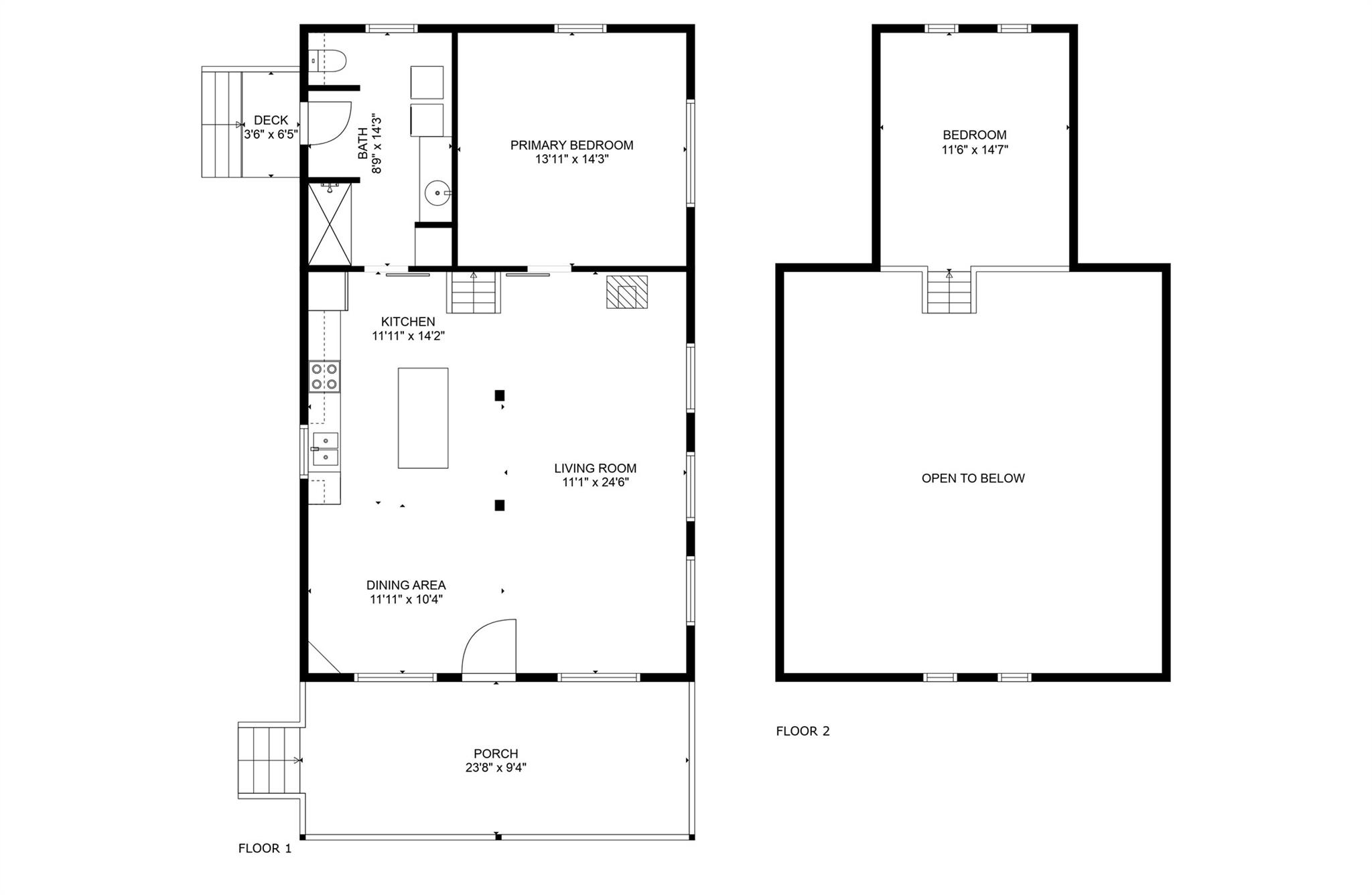
Discover a rare gem nestled in the enchanting South Toe Valley, where two charming homes share a pristine 4.5-acre canvas of natural beauty and organic abundance. This exceptional multi-family property offers an extraordinary opportunity for those seeking sustainable living, rental income potential, or simply a peaceful retreat surrounded by the majestic mountains of Western North Carolina. The main residence welcomes you with thoughtful design featuring one comfortable bedroom and a versatile loft space that invites creativity and flexible living arrangements. Whether you envision the loft as a cozy reading nook, home office, artist's studio, or additional sleeping quarters for guests, its possibilities are limited only by your imagination. The home's layout flows seamlessly, creating an atmosphere of warmth and tranquility that instantly puts visitors at ease. Complementing the main house is a delightful cottage featuring one bedroom, perfect for hosting friends and family or generating steady rental income. The cottage maintains its own distinct character while harmonizing beautifully with the overall property aesthetic. This secondary dwelling provides privacy and independence for occupants while remaining close enough to the main house for easy interaction when desired. What truly sets this property apart is its commitment to organic, sustainable living practices. The current owners have lovingly cultivated an extensive fruit and vegetable garden using exclusively chemical-free methods, creating a thriving ecosystem that produces abundant harvests year after year. The established organic gardens showcase the property's fertile soil and ideal growing conditions, with plenty of sunshine exposure ensuring optimal crop yields throughout the growing seasons. The property features a practical chicken coop that adds both charm and functionality to the homestead experience. Fresh eggs from happy, free-ranging chickens become part of daily life, connecting residents to their food sources in the most natural way possible. The coop is thoughtfully positioned to provide easy access while maintaining proper distance from the living areas. Water management has been carefully considered throughout the property, with an efficient storage and watering system designed specifically for both livestock and garden irrigation. This thoughtful infrastructure ensures that plants and animals receive consistent, reliable water supplies even during drier periods, supporting the property's self-sufficient character. The South Toe Valley location provides an ideal balance between peaceful rural living and convenient access to amenities. Just minutes from downtown Burnsville, residents enjoy the best of both worlds – the serenity of mountain living with the practicality of nearby services, shopping, dining, and community events. Burnsville offers a charming small-town atmosphere with local businesses, restaurants, and cultural activities that celebrate the region's rich Appalachian heritage. For those with entrepreneurial spirits, this property presents exceptional rental income potential. The dual-home configuration allows for multiple revenue streams – rent both properties to different tenants, live in one while renting the other, or operate the cottage as a short-term vacation rental for tourists seeking authentic mountain experiences. The organic gardens and sustainable features add significant appeal for environmentally conscious renters who value chemical-free living spaces. The unrestricted nature of this property provides remarkable flexibility for future development or modifications. Whether you envision expanding the existing structures, creating additional garden spaces, or developing other agricultural ventures, the generous 4.5-acre parcel offers ample room for growth and creativity. The additional structures could be converted to artist studio to check all your boxes! Plus RV hookup between the two homes.

Property Summary
Property Type: Residential Property Subtype : Single Family Residence
Year Built : 2020 Construction Type : Site Built
Lot Size : 4.5 Acres Living Area : 997 sqft
Property Features
  • Level
  • Private
  • Sloped
Views
  • Mountain(s)
Appliances
  • Dryer
  • Electric Range
  • Refrigerator
  • Washer
More Information
  • Construction : Hardboard Siding
  • Roof : Metal
  • Parking : Driveway
  • Heating : Ductless, Wood Stove
  • Cooling : Ductless
  • Water Source : Well
  • Road : Other - See Remarks
  • Listing Terms : Cash, Conventional, FHA, USDA Loan, VA Loan

Based on information submitted to the MLS GRID as of 11-16-2025 19:55:04 UTC All data is obtained from various sources and may not have been verified by broker or MLS GRID. Supplied Open House Information is subject to change without notice. All information should be independently reviewed and verified for accuracy. Properties may or may not be listed by the office/agent presenting the information.

Listed By
Dream Mountain Realty
Mary Blevins
828-284-1300
Contact Us