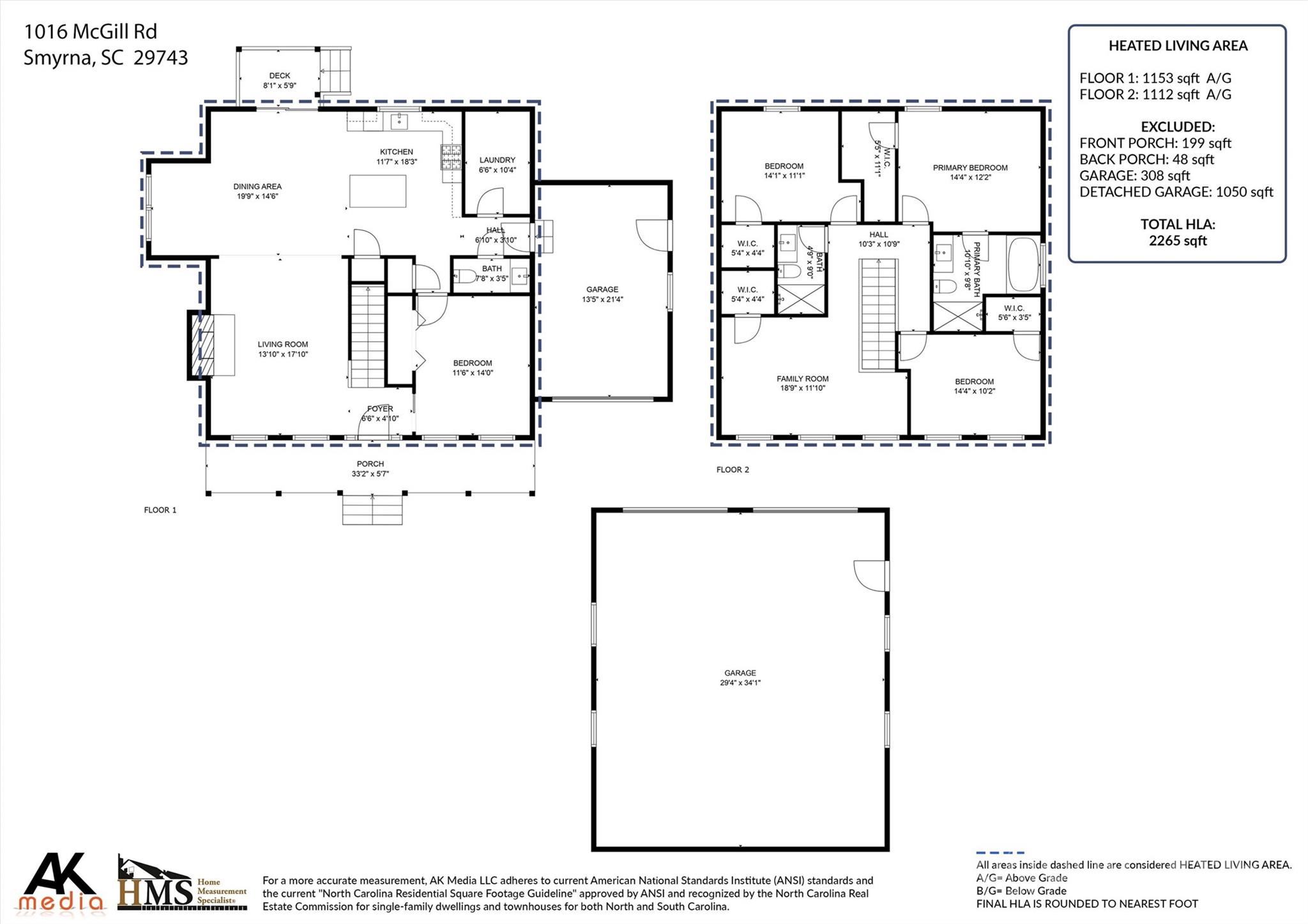
1016 Mcgill Road

1016 Mcgill Road

Smyrna, SC 29743
$657,777

  • Bedrooms: 4
  • Bathrooms: 3
  • Lot Size: 12.357 Acres
Description

Welcome to this serene countryside retreat. This newly constructed residence is situated on a hilltop within a 12.3-acre wooded parcel, ideal for relaxation and exploration. With its exquisite design selections and natural color palette, this charming farmhouse design will undoubtedly captivate your senses. The home boasts an attached garage and a two-car detached garage/workshop, fully equipped with electrical outlets, power garage doors, and a concrete floor. A seasonal creek adds to the character of the property, providing ample opportunities for leisurely strolls amidst nature. The covered porches offer a serene retreat, inviting you to unwind and immerse yourself in the surrounding ambiance. Savor the culinary experience of cooking with a gas range, a wall-mounted pot filler over the stove, and a vented hood. Throughout the downstairs, upgraded LVP flooring has been installed, while upgraded carpet and padding have been installed upstairs. The kitchen boasts granite countertops, and all bathrooms complement the thoughtful design. The workshop was constructed in 2024, and construction on the residence was completed in August 2025. You can benefit from the advantages of new construction without having to endure the entire construction process. Book your showing today! *range is gas-propane tank and service will need to be set up by buyer

Property Summary
Property Type: Residential Property Subtype : Single Family Residence
Year Built : 2025 Construction Type : Site Built
Lot Size : 12.357 Acres Living Area : 2,265 sqft
Property Features
  • Wooded
  • Garage
  • Fireplace
  • Covered Patio
  • Front Porch
  • Rear Porch
Appliances
  • Dishwasher
  • Disposal
  • Exhaust Hood
  • Gas Range
More Information
  • Construction : Vinyl
  • Parking : Driveway, Attached Garage, Detached Garage
  • Heating : Heat Pump
  • Cooling : Central Air
  • Water Source : Well
  • Road : Publicly Maintained Road
  • Listing Terms : Cash, Conventional, FHA, VA Loan

Based on information submitted to the MLS GRID as of 11-17-2025 01:49:05 UTC All data is obtained from various sources and may not have been verified by broker or MLS GRID. Supplied Open House Information is subject to change without notice. All information should be independently reviewed and verified for accuracy. Properties may or may not be listed by the office/agent presenting the information.

Listed By
Keller Williams Connected
Brad Ramsey
803-833-3585
Contact Us