6108 Gold Creek Estate Drive

6108 Gold Creek Estate Drive

Hickory, NC 28601
$399,900

  • Bedrooms: 3
  • Bathrooms: 3
  • Lot Size: 0.562 Acres
Description

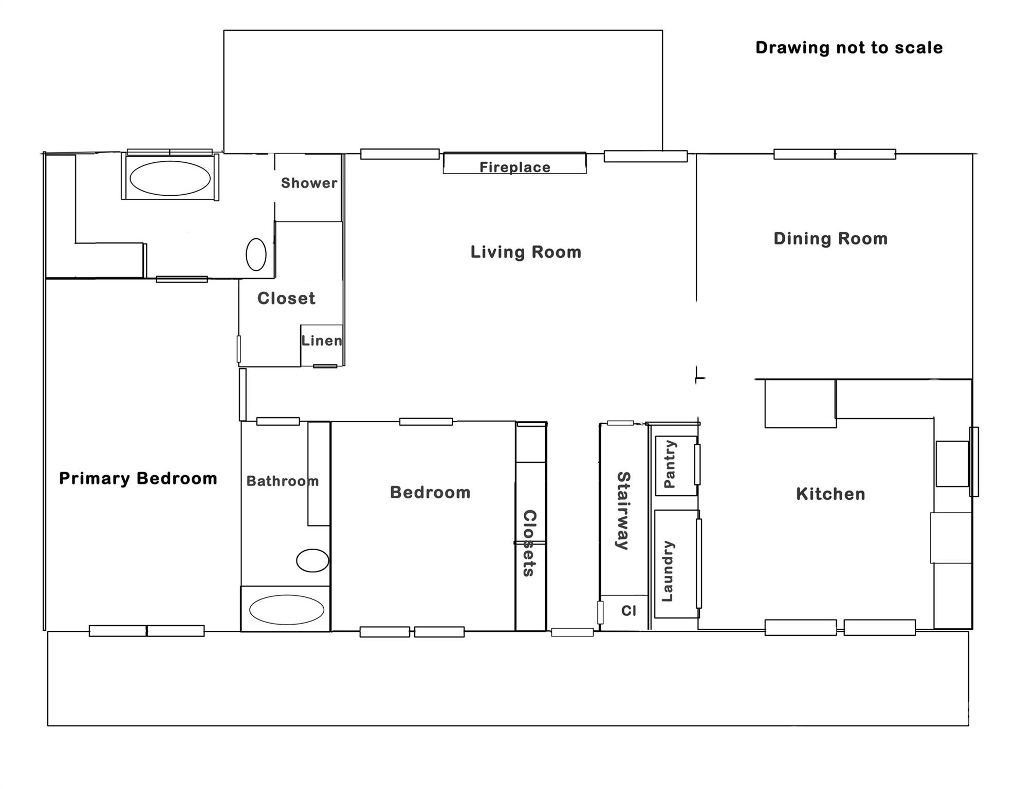
This house is just waiting to become a home for the buyers looking for a move in ready property. Once you open the front door and see the shine of the new flooring. the fireplace that is center attraction of the living room and your eyes go straight to the door and windows overlooking the inground pool in the backyard you won't be able to wait to explore the rest of the home. The primary bedroom on the main level offers an wonderful updated bath with walk-in shower,a tub and vanity, and don't miss the large walk in closet. Also upstairs is an additional bedroom bath, LR, DR and kitchen. Downstairs is another primary suite with bath, or can be used as den with fireplace and area has additional storage. Back outside to the pool and gazebo for space to relax or entertain family and friends. Add to the entainment this neighborhood has lake access for additional enjoyment. Don't wait any longer make plans to see this property today.

Property Summary
Property Type: Residential Property Subtype : Single Family Residence
Year Built : 1985 Construction Type : Site Built
Lot Size : 0.562 Acres Living Area : 2,410 sqft
Appliances
  • Dishwasher
  • Electric Range
  • Electric Water Heater
  • Microwave
  • Washer/Dryer
More Information
  • Construction : Brick Partial, Wood
  • Roof : Shingle
  • Parking : Attached Garage
  • Heating : Heat Pump
  • Cooling : Heat Pump
  • Water Source : County Water
  • Road : Publicly Maintained Road
  • Listing Terms : Cash, Conventional, FHA

Based on information submitted to the MLS GRID as of 10-02-2025 03:59:04 UTC All data is obtained from various sources and may not have been verified by broker or MLS GRID. Supplied Open House Information is subject to change without notice. All information should be independently reviewed and verified for accuracy. Properties may or may not be listed by the office/agent presenting the information.

Listed By
Realty Executives of Hickory
Glenda Wilson
828-313-7118
Contact Us