581 Nesbe Street

581 Nesbe Street

Lancaster, SC 29720
$372,490

  • Bedrooms: 4
  • Bathrooms: 3
  • Lot Size: 0.15 Acres
Description

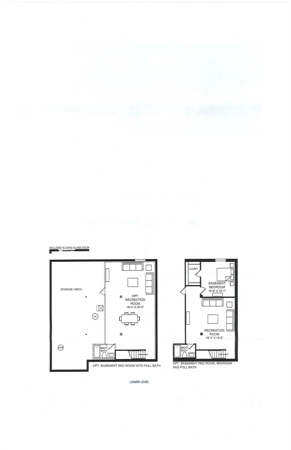
Our most popular floorplan, this open concept ranch home features granite countertops, GE stainless appliances including a refrigerator, and a spacious kitchen island with pull-out shelving. The primary suite is complete with a generous walk-in closet and walk- in shower. Large windows let in lots of natural light and add to the bright and pleasant feel of the home. Plus, the partially finished basement includes a rec room, full bathroom, bedroom, and a deck! The basement also includes a very large unfinished storage area. You have the ability to personalize this home with your choice of designer finishes! Please call us for your appointment to view our community and fully furnished model!

Property Summary
Property Type: Residential Property Subtype : Single Family Residence
Year Built : 2026 Construction Type : Site Built
Lot Size : 0.15 Acres Living Area : 2,339 sqft
Property Features
  • Level
  • Garage
  • Cable Prewire
  • Entrance Foyer
  • Kitchen Island
  • Open Floorplan
  • Pantry
  • Walk-In Closet(s)
  • Insulated Window(s)
  • Deck
Appliances
  • Dishwasher
  • Disposal
  • Electric Range
  • Electric Water Heater
  • Exhaust Fan
  • Microwave
  • Plumbed For Ice Maker
  • Refrigerator
More Information
  • Construction : Stone Veneer, Vinyl
  • Roof : Architectural Shingle
  • Parking : Driveway, Attached Garage, Garage Door Opener
  • Heating : Electric
  • Cooling : Central Air
  • Water Source : City
  • Road : Publicly Maintained Road

Based on information submitted to the MLS GRID as of 11-16-2025 20:05:05 UTC All data is obtained from various sources and may not have been verified by broker or MLS GRID. Supplied Open House Information is subject to change without notice. All information should be independently reviewed and verified for accuracy. Properties may or may not be listed by the office/agent presenting the information.

Listed By
Century 21 Providence Realty
Grady Thomas
704-608-8575
Contact Us