4080 Barbrick Street

4080 Barbrick Street

Sherrills Ford, NC 28673
$635,000

  • Bedrooms: 3
  • Bathrooms: 4
  • Lot Size: 0.76 Acres
Description

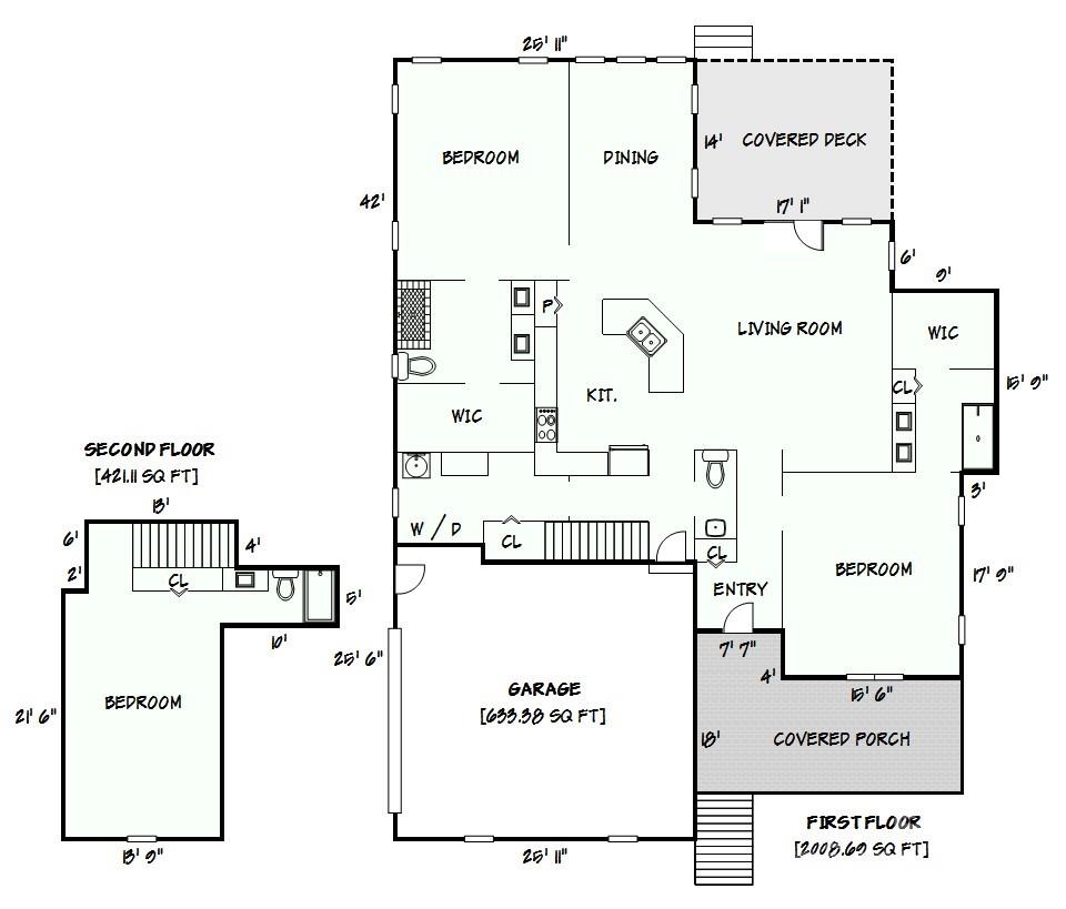
Seller is offering $5,000 toward buyer’s closing costs with an acceptable offer! These funds could potentially be used to buy down your interest rate or apply toward other loan-related expenses. Built in 2015 and located directly across from Lake Norman with seasonal water views, this beautifully maintained one-level living home offers both elegance and ease. Featuring an open floor plan, this home includes granite countertops, custom cabinets, and a formal dining room perfect for entertaining and everyday comfort. Enjoy two spacious primary suites, each with walk-in showers, along with a third private bedroom suite above the garage with its own full bath and mini-split system, ideal for guests or multi-generational living. The main level also provides a large laundry room and a half bath conveniently located off the oversized 2-car garage. Spend your mornings on the inviting front porch overlooking the lake or unwind on the peaceful back porch surrounded by lush landscaping. Located in a prime area for commuters to Charlotte or the Hickory Metro, this home delivers functionality, charm, and proximity to the water, everything you’ve been waiting for!

Property Summary
Property Type: Residential Property Subtype : Single Family Residence
Year Built : 2015 Construction Type : Site Built
Lot Size : 0.76 Acres Living Area : 2,429 sqft
Property Features
  • Views
  • Garage
  • Covered Patio
  • Front Porch
  • Rear Porch
Appliances
  • Dishwasher
  • Disposal
  • Electric Oven
  • Electric Range
  • Ice Maker
  • Microwave
  • Refrigerator
More Information
  • Construction : Brick Partial, Vinyl
  • Roof : Shingle
  • Parking : Driveway, Attached Garage, Garage Faces Side
  • Heating : Heat Pump
  • Cooling : Heat Pump
  • Water Source : City
  • Road : Publicly Maintained Road, Private Maintained Road

Based on information submitted to the MLS GRID as of 11-16-2025 20:05:05 UTC All data is obtained from various sources and may not have been verified by broker or MLS GRID. Supplied Open House Information is subject to change without notice. All information should be independently reviewed and verified for accuracy. Properties may or may not be listed by the office/agent presenting the information.

Listed By
Bridges Real Estate, LLC
Casey Bridges
828-999-2476
Contact Us